Nhà 1 tầng 4 phòng ngủ đang trở thành lựa chọn lý tưởng cho những gia đình có từ 2–3 thế hệ cùng sinh sống. Không chỉ đáp ứng nhu cầu về không gian sinh hoạt thoải mái, loại hình nhà này còn ghi điểm với thiết kế đa dạng – từ mái Thái, mái Nhật, mái bằng cho đến nhà chữ L, nhà vườn, nhà vuông hiện đại. Dù diện tích 100m2, 120m2 hay lên đến 200m2, bạn đều có thể dễ dàng tìm thấy một mẫu nhà đẹp 1 tầng 4 phòng ngủ phù hợp với nhu cầu và ngân sách của mình.
Trong bài viết này, Vicohome sẽ tổng hợp các mẫu thiết kế nhà 4 phòng ngủ 1 tầng đẹp – tối ưu công năng, gợi ý bản vẽ mặt bằng, chi phí xây dựng, cùng kinh nghiệm xây dựng thực tế, giúp bạn tự tin hơn khi lên kế hoạch cho tổ ấm tương lai.
Tổng quan về nhà 1 Tầng 4 phòng ngủ
Trong bối cảnh đô thị hóa ngày càng phát triển, nhu cầu sở hữu một không gian sống rộng rãi, tiện nghi nhưng vẫn đảm bảo sự riêng tư và kết nối giữa các thành viên trong gia đình đang trở thành xu hướng nổi bật. Mẫu nhà đẹp 1 tầng 4 phòng ngủ là lựa chọn lý tưởng cho các gia đình đông người, ba thế hệ chung sống hoặc những ai yêu thích không gian sống yên bình, gần gũi với thiên nhiên.

Mẫu nhà 4 phòng ngủ 1 tầng phù hợp với ai?
Loại hình nhà này phù hợp với nhiều nhóm đối tượng, đặc biệt là:
-
Gia đình có từ 4–6 thành viên cần nhiều phòng riêng nhưng vẫn muốn sinh hoạt chung thuận tiện.
-
Gia đình đa thế hệ gồm ông bà – bố mẹ – con cái mong muốn sống quây quần nhưng không gian vẫn đảm bảo riêng tư.
-
Người trung niên hoặc cao tuổi yêu thích phong cách sống một tầng, không cầu thang, an toàn và tiện lợi.
-
Gia đình tại nông thôn hoặc ven đô, sở hữu quỹ đất rộng, muốn xây dựng mẫu nhà đẹp 1 tầng 4 phòng ngủ vừa hiện đại, vừa gần gũi thiên nhiên.

Ưu điểm của mẫu nhà đẹp 1 tầng 4 phòng ngủ
Sở hữu nhiều lợi thế nổi bật, thiết kế nhà 1 tầng 4 phòng ngủ ngày càng được ưa chuộng:
-
Tối ưu công năng sử dụng: Bố trí khoa học, linh hoạt giữa phòng ngủ, phòng sinh hoạt, bếp và khu vệ sinh.
-
Tiết kiệm chi phí xây dựng và bảo trì hơn so với các mẫu nhà nhiều tầng.
-
An toàn cho trẻ em và người lớn tuổi nhờ thiết kế không có cầu thang.
-
Tăng tính kết nối gia đình nhờ không gian sinh hoạt chung thông thoáng, dễ giao tiếp.
-
Dễ dàng mở rộng, cải tạo theo nhu cầu về sau nếu quỹ đất cho phép.

Nếu bạn đang tìm kiếm một không gian sống tiện nghi, thẩm mỹ và thân thiện với môi trường, thì mẫu nhà 1 tầng đẹp 4 phòng ngủ chính là lựa chọn đáng cân nhắc.
Nguyên tắc thiết kế nhà 1 tầng 4 phòng ngủ
Tùy vào dáng đất, lối kiến trúc chủ đạo cũng như nhu cầu sử dụng sinh hoạt và kinh phí hiện có của từng gia chủ mà khi thiết kế nhà 4 phòng ngủ 1 tầng sẽ cần tuân theo những nguyên tắc khác nhau. Dưới đây là một số nguyên tắc thiết kế phổ biến bạn có thể tham khảo:
-
Cấu trúc nhà chắc chắn: Với nhà 1 tầng đẹp 4 phòng ngủ tốt nhất gia chủ nên sử dụng cấu trúc chịu lực bằng khung thép trọng lượng nhẹ để đảm bảo tính ổn định và chịu lực tốt cho ngôi nhà. Ngoài ra, khi thi công mẫu nhà này còn cần phải tuân theo nguyên tắc về bố cục và đường nét kiến trúc. Cụ thể gia chủ nên sử dụng các đường nét thẳng gọn gàng vuông vắn, chia thành nhiều gian vách để tạo ra các phòng và không gian sống khác nhau. Có thể kết hợp nhiều loại mái như mái nhật, mái thái, mái bằng, mái lệch để tạo điểm nhấn cho căn nhà.
-
Nguyên tắc tỷ lệ thiết kế: Nên tuân theo nguyên tắc đối xứng và tỷ lệ vàng trong thiết kế nhằm tạo ra sự cân đối, hài hòa. Tuy nhiên, cũng có thể áp dụng các nguyên tắc tự do sáng tạo để tạo nên phong cách hiện đại và cá nhân hóa.
-
Nguyên tắc trong chọn gam màu ngoại thất: Sử dụng các gam màu trung tính nhẹ nhàng như trắng, đen, ghi, xám. Kết hợp với các vật liệu cao cấp có tính ứng dụng cao như vách kính, gỗ nhựa, bê tông cốt thép, ngói vảy cá hay vảy sóng để tạo ra không gian thoáng đãng mang vẻ đẹp tinh tế, hiện đại.
-
Thiết kế không gian mở: Trong thiết kế mẫu nhà 1 tầng 4 phòng ngủ gia chủ có thể phân chia không gian thông qua các chi tiết nội thất có chức năng cụ thể như tủ rượu, bàn đảo bếp, quầy bar mini để ngôi nhà trở lên sự rộng rãi, tiện nghi hơn. Sử dụng hệ thống cửa đồ sộ với nhiều cửa sổ cao và cửa ra vào chính phụ nhằm tạo sự kết nối với môi trường xung quanh, cung cấp ánh sáng tự nhiên cho ngôi nhà.

Các mẫu nhà 1 tầng 4 phòng ngủ đẹp
Hiện nay, có rất nhiều kiểu thiết kế mẫu nhà đẹp 1 tầng 4 phòng ngủ được phát triển dựa trên phong cách kiến trúc, diện tích đất và sở thích gia chủ. Từ hiện đại đến tân cổ điển, từ mái Thái, mái Nhật cho đến mái bằng – mỗi mẫu đều mang dấu ấn riêng và đáp ứng đa dạng nhu cầu sử dụng.

Mẫu nhà mái Thái 1 tầng 4 phòng ngủ
Đây là kiểu kiến trúc được yêu thích bởi khả năng chống nóng, thoát nước tốt cùng vẻ đẹp thanh thoát, sang trọng. Mẫu nhà mái Thái 1 tầng 4 phòng ngủ thường có hệ mái giật cấp, dốc nhẹ, kết hợp cùng phần hiên rộng và cửa sổ thoáng mát.
-
Ưu điểm: Sang trọng, mát mẻ, phù hợp khí hậu Việt Nam.
-
Phù hợp: Gia đình truyền thống, yêu thích sự bề thế.

Mẫu nhà 1 tầng 4 phòng ngủ mái Nhật
Với thiết kế mái lùn, đổ dốc nhẹ ra các phía, nhà mái Nhật 1 tầng 4 phòng ngủ 180m2 mang lại vẻ thanh thoát, hiện đại. Kiến trúc này rất phù hợp cho những ai yêu sự đơn giản mà tinh tế.
-
Đặc trưng: Thiết kế hài hòa, kết hợp nhiều vật liệu hiện đại.
-
Gợi ý: Phối cảnh sân vườn xung quanh sẽ làm nổi bật tổng thể công trình.

Mẫu nhà mái bằng 1 tầng 4 phòng ngủ
Phong cách mái bằng mang hơi hướng hiện đại, thường đi kèm thiết kế khối vuông vức, mạnh mẽ. Nhà mái bằng 1 tầng 4 phòng ngủ phù hợp với những gia đình trẻ, yêu thích sự tối giản.
-
Ưu điểm: Thi công nhanh, chi phí tiết kiệm, dễ mở rộng tầng sau.
-
Lưu ý: Cần xử lý thoát nước và chống nóng tốt.

Mẫu thiết kế nhà 4 phòng ngủ 1 tầng mái lệch
Đây là xu hướng thiết kế mới, nổi bật nhờ hình khối bất đối xứng, mang lại vẻ cá tính và phá cách cho công trình. Mẫu nhà đẹp 1 tầng 4 phòng ngủ mái lệch phù hợp với các gia đình trẻ, yêu sự mới mẻ và nổi bật.

Mẫu nhà 1 tầng 4 phòng ngủ hiện đại
Phong cách hiện đại chú trọng sự tối giản, tập trung vào công năng, ánh sáng và không gian mở. Các mẫu nhà này thường sử dụng kính, vật liệu mới và bố trí thông minh. Mẫu nhà này phù hợp với các gia đình yêu sự tiện nghi, trẻ trung và sáng tạo.

Mẫu nhà 1 tầng đẹp 4 phòng ngủ tân cổ điển
Mang phong cách châu Âu nhẹ nhàng với các đường gờ phào chỉ tinh tế. Thiết kế này kết hợp giữa vẻ đẹp cổ điển và công năng hiện đại. Ưu điểm của mẫu này là thiết kế đẳng cấp, sang trọng, thể hiện gu thẩm mỹ của gia chủ.

Mẫu nhà chữ l 1 tầng 4 phòng ngủ
Hình khối chữ L giúp tối ưu không gian sử dụng, tạo khoảng sân phía trong làm chỗ đậu xe, sân chơi hoặc tiểu cảnh. Mẫu nhà chữ L 1 tầng 4 phòng ngủ được ưa chuộng tại nông thôn, vùng ngoại thành. Mẫu nhà chữ L sẽ tạo được sự riêng tư giữa các phòng, dễ mở rộng không gian.

Mẫu nhà vuông 1 tầng 4 phòng ngủ
Thiết kế vuông vức thể hiện sự vững chãi, tối ưu không gian và hợp phong thủy. Thường có bố trí đối xứng, hành lang thông thoáng.

Mẫu nhà 1 tầng 4 phòng ngủ đẹp ở nông thôn
Mẫu nhà đẹp 1 tầng 4 phòng ngủ ở nông thôn tận dụng diện tích đất rộng, thiết kế mở với sân vườn thoáng đãng. Phong cách mộc mạc, gần gũi nhưng vẫn đảm bảo công năng hiện đại.

Nhà 1 tầng 4 phòng ngủ 1 phòng thờ
Mẫu nhà 4 phòng ngủ 1 tầng có phòng thờ phù hợp với gia đình truyền thống, chú trọng yếu tố tâm linh. Phòng thờ thường được bố trí ở vị trí trung tâm hoặc đầu nhà.

Mẫu nhà vườn đẹp 1 tầng 4 phòng ngủ
Sở hữu khuôn viên xanh mát, thiết kế nhà vườn 1 tầng 4 phòng ngủ giao hòa với thiên nhiên. Rất lý tưởng với người cao tuổi hoặc gia đình yêu thích sự thư giãn.

Mẫu nhà 1 tầng 4 phòng ngủ đẹp có gara ô tô
Thiết kế tích hợp gara trong nhà hoặc tách riêng, phù hợp với nhu cầu sử dụng xe ô tô ngày càng cao của các gia đình hiện đại.

Nhà 1 tầng 4 phòng ngủ 100m2
Với diện tích này, việc bố trí công năng cho mẫu nhà đẹp 1 tầng 4 phòng ngủ cần tính toán kỹ lưỡng để tránh chật chội. Nên ưu tiên thiết kế theo phong cách hiện đại, tối giản để tối ưu không gian.
-
Phù hợp với: Gia đình 3 thế hệ từ 4–6 người.
-
Bí quyết: Dùng tường nhẹ, nội thất đa năng, bố trí không gian mở giữa bếp – ăn – khách.

Mẫu nhà 1 tầng 4 phòng ngủ 120m2
Diện tích này phù hợp với những lô đất vừa phải, phổ biến ở ngoại thành hoặc vùng ven thành phố. Thiết kế nhà 4 phòng ngủ 1 tầng 120m2 cần được tối ưu để đảm bảo sự thông thoáng và tiện nghi.
-
Công năng đề xuất: 4 phòng ngủ + 1 phòng khách + bếp + 2 WC.
-
Gợi ý: Sử dụng vách ngăn thông minh, tối ưu ánh sáng tự nhiên qua cửa sổ lớn, cửa lùa.

Mẫu nhà 1 tầng 4 phòng ngủ 150m2
Với diện tích 150m2, gia chủ có thể bố trí đầy đủ 4 phòng ngủ, phòng khách, bếp, 2–3 WC và cả phòng thờ nếu cần. Đây là diện tích lý tưởng cho những mẫu nhà vườn 1 tầng 4 phòng ngủ ở nông thôn hoặc vùng ven đô.
-
Ưu điểm: Dễ thiết kế theo nhiều phong cách, từ mái Nhật, mái Thái đến hiện đại.
-
Gợi ý bố trí: 2 phòng ngủ lớn – 2 phòng ngủ nhỏ, kết hợp không gian sinh hoạt chung ở giữa, sân vườn trước sau.

Mẫu nhà 1 tầng 4 phòng ngủ 200m2
Với diện tích rộng rãi, gia chủ có thể thỏa sức sáng tạo với thiết kế mái Thái, mái Nhật hoặc biệt thự sân vườn. Đây là lựa chọn tuyệt vời cho những gia đình có điều kiện hoặc muốn đầu tư lâu dài.
-
Đặc trưng: Mỗi phòng đều có WC riêng, không gian sinh hoạt chung lớn, sân chơi cho trẻ hoặc khu tiểu cảnh thư giãn.
-
Phù hợp với: Biệt thự mini, nhà vườn nghỉ dưỡng.

➤➤➤ Xem thêm: 101+ Mẫu nhà 1 tầng đẹp, hiện đại và đầy đủ tiện nghi
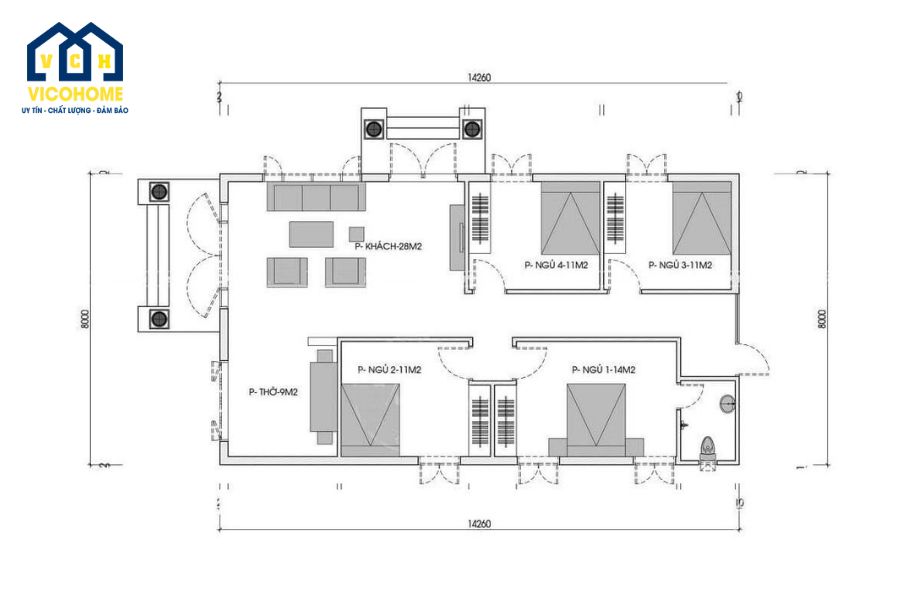
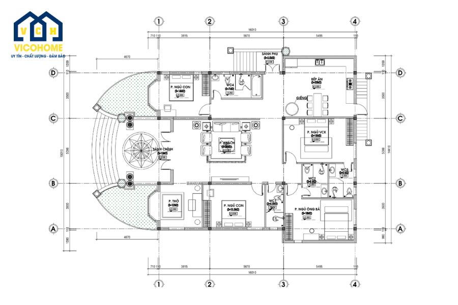
Bản vẽ nhà 1 tầng 4 phòng ngủ
Bản vẽ mặt bằng cho mẫu nhà đẹp 1 tầng 4 phòng ngủ đóng vai trò cực kỳ quan trọng khi thiết kế, giúp định hình rõ ràng bố cục không gian, đảm bảo sự tiện nghi, khoa học và phù hợp phong thủy. Dưới đây là một số gợi ý về cách bố trí mặt bằng phổ biến và hiệu quả. Dưới đây là một số mẫu bản vẽ đẹp và tối ưu công năng bạn có thể tham khảo:



Gợi ý mặt bằng nhà 1 tầng 4 phòng ngủ

Phòng khách
-
Diện tích: Kích thước phòng khách nằm trong khoảng 14m2 - 30m2 là phòng rộng nhất trong ngôi nhà.
-
Thiết kế: Phòng khách của mẫu nhà 1 tầng 4 phòng ngủ nên được đặt gần cửa chính để thuận tiện cho việc tiếp đón khách. Gia chủ có thể sáng tạo thiết kế theo gu thẩm mỹ. Nên chọn màu sơn tường và nội thất dựa trên sở thích cá nhân, nhưng không nên sử dụng quá 3 màu.

Phòng bếp và phòng ăn
-
Diện tích: Phòng bếp và khu vực ăn uống nằm trong khoảng 12m2 - 15m2.
-
Bố trí: Phòng bếp nên được bố trí sao cho hướng bếp không đối diện với cửa vệ sinh và không đặt trên bể phốt. Khu vực ăn uống nên có tầm nhìn thẳng ra phòng khách để tạo không gian thoáng đãng.

Phòng ngủ
-
Bố trí: Các phòng ngủ nên được bố trí sau phòng khách, tách hành lang với phòng bếp. Điều này giúp đảm bảo tính riêng tư và tránh nguồn gây tiếng ồn cho giấc ngủ chất lượng.
-
Diện tích: Các phòng ngủ khép kín dành cho 1-2 người, thường được bố trí diện tích khoảng 12m2 - 18m2.
-
Hướng phòng ngủ: Chủ nhà nên ngủ trong phòng giáp mặt tiền. Nếu không hợp hướng mặt tiền, thì nên ngủ phòng mặt sau theo phái Bát trạch. Trường hợp không hợp cả 2 mặt tiền và hậu, giường ngủ nên được đặt gần trung cung và hướng đầu giường hợp phái Bát trạch.

Phòng thờ
-
Vị trí: Phòng thờ nên được đặt ở gian nhà chính, giữa phòng khách theo kiểu nhà cổ Việt Nam.
-
Tối kỵ: Tránh đặt hướng bàn thờ quay về sau nhà trong trường hợp chủ nhà không hợp hướng đất, để không bắt các quan úp mặt vào sau nhà, dễ bị phạt.
Chi phí xây nhà 1 tầng 4 phòng ngủ
Chi phí luôn là một trong những yếu tố được quan tâm hàng đầu khi lên kế hoạch xây dựng. Đối với nhà 4 phòng ngủ 1 tầng, mức đầu tư sẽ phụ thuộc vào nhiều yếu tố như diện tích, kiểu mái, phong cách thiết kế, vật liệu sử dụng và khu vực xây dựng.
- Với những mẫu nhà đơn giản, tối ưu chi phí giá có thể chỉ từ 5.000.000 VNĐ/m2 hoàn thiện trọn gói. Ngược lại với những mẫu phức tạp, yêu cầu cao về thẩm mỹ và kỹ thuật, sử dụng vật liệu cao cấp, đơn giá xây dựng có thể lên đến 8.000.000 - 8.500.000 VNĐ/m2.
- Với ngôi nhà có diện tích khoảng 100m2 tổng chi phí xây dựng sẽ rơi vào khoảng 600 - 850 triệu.
- Để biết được chính xác chi phí xây nhà 1 tầng có 4 phòng ngủ là bao nhiêu, quý khách hàng vui lòng liên hệ hotline 096 119 95 95 để được chuyên viên của Vicohome tư vấn và báo giá cụ thể nhất!

Kinh nghiệm thiết kế và xây nhà 1 tầng 4 phòng ngủ
Để sở hữu một mẫu nhà đẹp 1 tầng 4 phòng ngủ vừa thẩm mỹ, vừa đáp ứng đầy đủ công năng và phù hợp ngân sách, bạn cần lưu ý những kinh nghiệm quan trọng dưới đây.

Tối ưu chi phí hợp lý
Thay vì cố gắng đầu tư tất cả ngay từ đầu, bạn có thể phân chia ngân sách hợp lý giữa phần thô và hoàn thiện. Nên lựa chọn vật liệu có độ bền tốt, thẩm mỹ ổn định nhưng giá thành vừa phải.
Tối ưu không gian & công năng sử dụng
Cân đối diện tích các phòng: phòng ngủ từ 12–16m2, phòng khách từ 25–30m2, bếp ăn rộng thoáng, có cửa phụ nếu cần thông gió. Nên có ít nhất 2 nhà vệ sinh – 1 chung, 1 riêng cho phòng master. Sử dụng nội thất âm tường, vật dụng đa năng để tiết kiệm diện tích cho mẫu nhà 1 tầng 4 phòng ngủ 100m2 – 120m2.
Lựa chọn dáng mái và phong cách phù hợp
-
Với diện tích nhỏ: nên chọn mái bằng hoặc mái lệch hiện đại để tiết kiệm không gian và chi phí.
-
Với diện tích rộng: mái Thái, mái Nhật, hoặc phong cách biệt thự vườn giúp tôn lên vẻ bề thế, thoáng mát.
-
Nhà hình chữ L hoặc nhà vuông đều dễ bố trí công năng, chỉ cần thiết kế đúng hướng và hài hòa tổng thể.

Lưu ý về phong thủy
Hướng nhà, vị trí cửa chính – cửa phụ – phòng ngủ – phòng thờ cần được bố trí hợp mệnh gia chủ. Nên tham khảo kiến trúc sư có kinh nghiệm để đảm bảo mẫu nhà 4 phòng ngủ 1 tầng không chỉ đẹp mà còn thu hút tài lộc, sức khỏe cho cả gia đình.
Lựa chọn kiến trúc sư và đơn vị thi công uy tín
Một bản thiết kế chuẩn chỉ, khoa học sẽ giúp tiết kiệm chi phí và hạn chế sai sót trong thi công. Hãy chọn đơn vị thiết kế và thi công trọn gói, nơi có đội ngũ kiến trúc sư giàu kinh nghiệm, thi công đúng tiến độ, bảo hành dài hạn và hỗ trợ bạn từ A-Z.
Việc lựa chọn mẫu nhà 1 tầng 4 phòng ngủ không chỉ đảm bảo sự tiện nghi, mà còn giúp tối ưu hóa không gian sống cho gia đình bạn. Dù bạn đang tìm kiếm một không gian sống hiện đại, sang trọng hay một ngôi nhà ấm cúng, phong cách cổ điển, xaydungnhauytin.com luôn có những giải pháp thiết kế linh hoạt để đáp ứng mọi nhu cầu. Nếu bạn đang cân nhắc xây và thiết kế mẫu nhà đẹp 1 tầng 4 phòng ngủ, đừng quên rằng việc lựa chọn một đơn vị thiết kế uy tín là rất quan trọng để đảm bảo chất lượng công trình. Vicohome với đội ngũ kiến trúc sư chuyên nghiệp và kinh nghiệm lâu năm trong ngành xây dựng sẽ là đối tác tin cậy giúp bạn hiện thực hóa ngôi nhà mơ ước. Liên hệ hotline 096 119 95 95 để được tư vấn 24/7 bạn nhé.
Đánh giá - Bình luận
Có 0 bình luận, đánh giá về
Nhận xét và đánh giá