Trong những năm gần đây, nhà mái Thái 2 tầng chữ L trở thành xu hướng thiết kế được nhiều gia đình Việt Nam ưa chuộng. Với kiến trúc mái dốc thanh thoát, kiểu dáng chữ L linh hoạt cùng công năng khoa học, mẫu nhà này không chỉ mang đến sự tiện nghi mà còn tôn lên vẻ đẹp sang trọng cho ngôi nhà. Đặc biệt, nhà chữ L mái Thái 2 tầng phù hợp với cả khu vực thành phố lẫn nông thôn, đáp ứng tốt nhu cầu thẩm mỹ, công năng và phong thủy.

Nếu bạn đang tìm kiếm mẫu nhà mái Thái 2 tầng chữ L đẹp, tiện nghi và chi phí hợp lý, hãy tham khảo cùng Vicohome các mẫu thiết kế thịnh hành, bản vẽ tham khảo, chi phí xây dựng cho đến kinh nghiệm quan trọng khi thi công trong bài viết dưới đây nhé.
Đặc điểm của nhà mái Thái chữ L 2 tầng

- Kiến trúc chữ L linh hoạt: Thiết kế chữ L giúp tạo khoảng không gian mở, dễ dàng bố trí sân vườn, gara hoặc khu sinh hoạt ngoài trời. Kiểu dáng này mang đến sự thông thoáng và tính thẩm mỹ cao.
- Không gian thông thoáng: Với mặt tiền rộng, các phòng đều có thể đón gió và ánh sáng tự nhiên. Đây là ưu điểm nổi bật giúp ngôi nhà luôn mát mẻ, phù hợp khí hậu Việt Nam.
- Hệ mái Thái dốc cao, thẩm mỹ: Mái Thái có độ dốc lớn, thoát nước nhanh, chống ẩm và chống nóng tốt. Kiến trúc mái thanh thoát, sang trọng, tôn lên vẻ bề thế cho ngôi nhà.
- Công năng 2 tầng khoa học: Tầng 1 thường bố trí phòng khách, bếp, ăn và phòng ngủ. Tầng 2 là không gian nghỉ ngơi, phòng thờ, ban công. Cách sắp xếp khoa học mang lại sự tiện lợi cho gia đình.
- Phù hợp cả nông thôn và thành phố: Dù ở khu đô thị hay vùng quê, nhà mái Thái chữ L 2 tầng đều hài hòa cảnh quan, vừa hiện đại vừa gần gũi.
Ưu nhược điểm của mẫu nhà chữ L 2 tầng mái Thái

Ưu điểm
-
Tính thẩm mỹ cao: Kiến trúc mái Thái kết hợp cùng dáng chữ L tạo nên tổng thể vừa sang trọng vừa hiện đại.
-
Không gian đa dạng: Dễ dàng bố trí sân trước, gara hoặc tiểu cảnh ở khoảng trống chữ L.
-
Thoáng mát, tiện nghi: Các phòng đều có cửa sổ đón gió, ánh sáng tự nhiên.
-
Phù hợp nhiều diện tích đất: Dù đất rộng ở nông thôn hay đất hẹp ở thành phố, mẫu nhà này vẫn phát huy tối đa công năng.
-
Giá trị sử dụng lâu dài: Hệ mái Thái bền, chống thấm và chống nóng tốt, tuổi thọ công trình cao.

Nhược điểm
-
Chi phí xây dựng cao hơn so với nhà vuông hoặc nhà ống do thiết kế phức tạp.
-
Thiết kế kết cấu yêu cầu kỹ thuật: Cần đơn vị tư vấn chuyên nghiệp để đảm bảo độ bền vững.
-
Khó bố trí nội thất đối xứng: Nếu không có bản vẽ chi tiết, không gian dễ bị lệch hoặc thừa thiếu diện tích.
-
Thời gian thi công dài hơn so với các mẫu nhà đơn giản, vì mái Thái và dáng chữ L đòi hỏi nhiều công đoạn.
Các mẫu nhà mái Thái 2 tầng chữ L đẹp

Nhà mái Thái chữ L 2 tầng hiện đại
Mẫu thiết kế hiện đại tập trung vào đường nét tối giản, mảng khối rõ ràng và sử dụng vật liệu mới như kính cường lực, lam nhôm, gạch ốp giả gỗ. Kiểu nhà này phù hợp với gia đình trẻ yêu thích sự năng động, tiện nghi và tiết kiệm diện tích.

Nhà mái Thái 2 tầng chữ L tân cổ điển
Phong cách tân cổ điển nổi bật với cột trụ, phào chỉ mềm mại và màu sơn trung tính như trắng, kem, be. Mẫu nhà này mang đến vẻ đẹp sang trọng, tinh tế, phù hợp cho những gia đình có điều kiện kinh tế khá giả.

Mẫu nhà chữ L 2 tầng mái Thái đẹp có Gara
Nhờ phần khuyết chữ L, gara ô tô được bố trí gọn gàng ngay tầng trệt, tiện lợi trong sinh hoạt mà vẫn giữ được tính thẩm mỹ. Đây là lựa chọn lý tưởng cho những gia đình ở thành phố hoặc có nhu cầu sử dụng ô tô riêng.

Mẫu nhà mái Thái 2 tầng chữ L sân vườn
Ở nông thôn hoặc ngoại ô, gia chủ có thể tận dụng khoảng trống chữ L làm vườn hoa, hồ cá hoặc tiểu cảnh xanh. Kiểu thiết kế này vừa mát mẻ vừa tạo không gian nghỉ ngơi thư giãn lý tưởng cho cả gia đình.

Nhà 2 tầng mái Thái chữ L 3 phòng ngủ
Mẫu này phù hợp với gia đình 4–5 thành viên, gồm 1 phòng khách, 1 bếp ăn và 3 phòng ngủ được bố trí khoa học. Không gian đảm bảo tính riêng tư nhưng vẫn gắn kết giữa các thành viên.

Nhà mái Thái 2 tầng chữ L 4 phòng ngủ
Dành cho gia đình đông thành viên hoặc có nhu cầu thêm phòng ngủ cho khách. Các phòng được phân bổ ở cả 2 tầng, thuận tiện cho việc sinh hoạt mà không gây bí bách.

Mẫu nhà mái Thái hình chữ L 2 tầng đơn giản
Thiết kế nhà mái Thái chữ L 2 tầng tập trung vào công năng, bỏ bớt các chi tiết cầu kỳ để tiết kiệm chi phí. Thường sử dụng tông màu sáng, mái Thái ngói đỏ hoặc xanh ghi để tạo sự gần gũi, thanh thoát.

Nhà mái Thái 2 tầng chữ L ở nông thôn
Phong cách kết hợp truyền thống và hiện đại, diện tích rộng rãi, sân vườn thoáng đãng. Mẫu này mang lại sự tiện nghi nhưng vẫn gần gũi với không gian làng quê.

Biệt thự 2 tầng mái Thái chữ L
Kiến trúc bề thế, quy mô lớn, có thể tích hợp gara, sân vườn, hồ bơi và nhiều tiện ích cao cấp khác. Đây là lựa chọn dành cho những gia chủ muốn khẳng định đẳng cấp và gu thẩm mỹ riêng.

Mẫu nhà 2 tầng mái Thái hình chữ L 100m2
Diện tích 100m2 mang lại sự cân đối, không quá lớn nhưng vẫn đủ rộng để bố trí công năng hợp lý cho mẫu nhà chữ l 2 tầng mái thái. Kiểu nhà này phù hợp cả nông thôn lẫn thành phố với chi phí xây dựng hợp lý.

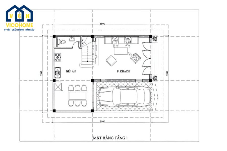
Bản vẽ nhà 2 tầng chữ L mái Thái
Để hình dung rõ hơn về cách bố trí không gian, dưới đây là gợi ý bản vẽ công năng phổ biến của nhà mái Thái 2 tầng chữ L:
Mặt bằng tầng 1
-
Phòng khách: thường đặt ở vị trí trung tâm, ngay cửa chính để thuận tiện tiếp khách.
-
Phòng bếp + ăn: bố trí phía sau hoặc bên hông nhà, đảm bảo sự riêng tư và thoáng đãng.
-
1 phòng ngủ: thích hợp cho ông bà hoặc người lớn tuổi, thuận tiện đi lại.
-
Khu vệ sinh chung: đặt cuối nhà để dễ dàng sử dụng.
-
Nếu có gara thì tận dụng khoảng trống chữ L làm chỗ để xe tiện lợi.

Mặt bằng tầng 2
-
2 – 3 phòng ngủ: phân bổ hợp lý cho các thành viên.
-
Phòng thờ: thường đặt ở vị trí cao ráo, trang nghiêm, phía trước mặt tiền.
-
Ban công: thiết kế rộng để lấy sáng, gió và làm không gian thư giãn.
-
WC chung: phục vụ cho cả tầng.

Với diện tích và nhu cầu sử dụng khác nhau, bản vẽ nhà 2 tầng chữ L mái Thái sẽ có sự thay đổi. Tuy nhiên, điểm chung là cách bố trí không gian khoa học, tận dụng lợi thế chữ L để tạo sự thông thoáng và riêng tư.
Chi phí thiết kế và xây nhà mái Thái 2 tầng chữ L
Để chuẩn bị xây dựng một ngôi nhà chữ l 2 tầng mái Thái, gia chủ cần tính toán kỹ lưỡng các khoản chi phí. Dưới đây là mức giá tham khảo mới nhất:
-
Chi phí thiết kế: dao động từ 120.000 – 150.000 VNĐ/m², phụ thuộc vào độ chi tiết của hồ sơ và phong cách kiến trúc lựa chọn.
-
Chi phí xây thô: khoảng 3,9 – 4,2 triệu/m², chưa bao gồm phần móng.
-
Chi phí móng: dao động 2,5 – 3,5 triệu/m², con số này có thể thay đổi nếu sử dụng móng cọc hoặc xử lý nền đất yếu.
-
Chi phí trọn gói: sẽ phụ thuộc nhiều vào vật liệu hoàn thiện, yêu cầu nội thất và phong cách thiết kế. Mức giá cụ thể cần được tính toán sau khi có bản vẽ chi tiết và trao đổi trực tiếp với đơn vị thi công.

Như vậy, tổng chi phí có thể chênh lệch đáng kể tùy vị trí đất, quy mô xây dựng, vật liệu hoàn thiện và thời điểm thi công. Để nhận được báo giá chính xác nhất cho ngôi nhà mái Thái chữ L 2 tầng, bạn nên liên hệ trực tiếp với Vicohome để được tư vấn và dự toán chi tiết theo nhu cầu thực tế. Hotline 096 119 95 95.
Kinh nghiệm xây dựng nhà chữ L mái Thái 2 tầng
Để có một ngôi nhà mái Thái 2 tầng chữ L vừa đẹp vừa tiện nghi, gia chủ cần chuẩn bị kỹ lưỡng từ khâu ý tưởng đến khi hoàn thiện. Dưới đây là những kinh nghiệm quan trọng:

Xác định nhu cầu sử dụng ngay từ đầu
Trước khi bắt tay vào thiết kế, gia chủ cần tính toán số lượng phòng ngủ, phòng sinh hoạt chung, gara, không gian sân vườn… Điều này giúp kiến trúc sư đưa ra bản vẽ phù hợp, tránh lãng phí diện tích và chi phí.
Lựa chọn phong cách kiến trúc phù hợp
Nhà mái Thái 2 tầng chữ L có thể thiết kế theo phong cách hiện đại, tân cổ điển hoặc kết hợp truyền thống – hiện đại. Việc lựa chọn phong cách ngay từ đầu giúp đồng bộ trong thiết kế ngoại thất, nội thất và vật liệu xây dựng.
Bố trí công năng khoa học
Kiến trúc chữ L vốn linh hoạt, vì vậy việc sắp xếp công năng cần đảm bảo: tầng 1 ưu tiên không gian sinh hoạt chung (phòng khách, bếp, gara), tầng 2 dành cho không gian riêng tư (phòng ngủ, phòng thờ). Ngoài ra, cần tối ưu ánh sáng và thông gió tự nhiên.
Dự trù kinh phí xây dựng
Chi phí xây dựng có thể biến động theo thời điểm và lựa chọn vật liệu. Gia chủ nên có bảng dự toán chi tiết để kiểm soát chi phí phát sinh. Đồng thời, nên chọn đơn vị thi công uy tín để đảm bảo tiến độ và chất lượng công trình.
Lưu ý phong thủy
Với kiến trúc chữ L, phong thủy rất quan trọng vì hình dáng ngôi nhà có thể tạo ra “khuyết góc”. Cần bố trí cửa chính, bậc tam cấp, phòng thờ, phòng ngủ hợp phong thủy để mang lại vượng khí và tài lộc cho gia chủ.
Nhà mái Thái 2 tầng chữ L là lựa chọn hoàn hảo cho những gia đình yêu thích sự tiện nghi, sang trọng và phù hợp với nhiều phong cách kiến trúc. Với ưu điểm nổi bật về thẩm mỹ, công năng và khả năng thích ứng cả ở thành thị lẫn nông thôn, đây chắc chắn sẽ là mẫu nhà được nhiều gia đình Việt lựa chọn trong những năm tới.
Xây dựng nhà mái Thái chữ L 2 tầng không chỉ là việc chọn mẫu đẹp mà còn cần tính toán công năng, chi phí và phong thủy hợp lý. Nếu bạn muốn có một bản thiết kế chuẩn, phù hợp nhu cầu và ngân sách, hãy để Vicohome đồng hành từ khâu lên ý tưởng đến thi công trọn gói. Liên hệ ngay với Vicohome để được tư vấn chi tiết và nhận báo giá phù hợp nhất cho ngôi nhà của bạn!
Đánh giá - Bình luận
Có 0 bình luận, đánh giá về
Nhận xét và đánh giá