Nhà tân cổ điển 4 tầng đang là xu hướng thiết kế nhà phố được nhiều gia chủ yêu thích nhờ sự kết hợp hài hòa giữa vẻ đẹp sang trọng, tinh tế và công năng sử dụng tối ưu. Lấy cảm hứng từ kiến trúc cổ điển châu Âu nhưng được lược giản phù hợp với nhịp sống hiện đại, các mẫu nhà phố 4 tầng tân cổ điển nổi bật với mặt tiền đối xứng, phào chỉ mềm mại, cột trụ thanh thoát cùng tone màu trang nhã. Không chỉ phù hợp với những khu đô thị sầm uất, kiểu nhà này còn được đánh giá cao về tính thẩm mỹ và giá trị lâu dài. Bài viết dưới đây Vicohome đã tổng hợp hơn các mẫu nhà 4 tầng tân cổ điển đẹp và được yêu thích nhất hiện nay – hứa hẹn sẽ là nguồn cảm hứng tuyệt vời cho những ai đang tìm kiếm một không gian sống đẳng cấp, thời thượng.

Đặc điểm đặc trưng của mẫu nhà 4 tầng tân cổ điển
- Điều tạo nên nét đặc trưng, phá cách cho kiến trúc của ngôi nhà 4 tầng phong cách tân cổ điển đến từ hệ phào chỉ và hoa văn tinh tế với họa tiết đầy kiêu sa.
- Những màu nhã nhặn như trắng, vàng,... thường được sử dụng vào phần ngoại thất của nhà tân cổ điển 4 tầng để thể hiện sự lộng lẫy, sang trọng. Có thể kết hợp thêm những gam màu như đen hoặc xám để làm điểm nhấn tạo nên sự phối màu tinh tế.
- Đặc trưng nổi bật của mẫu nhà này cũng đến từ hệ cột trụ, các đường nét phào chỉ được thiết kế chi tiết, tỉ mỉ, hình khối mái cong, mái vòm uyển chuyển, mềm mại. Hệ thống lan can, ban công, cửa chính, cửa sổ cũng được chạm khắc tinh tế.
Có thể thấy nếu muốn thi công một ngôi nhà tân cổ điển đòi hỏi gia chủ phải chú ý đến ngay cả những chi tiết nhỏ nhất và có thêm sự đầu tư về mặt tài chính nhằm tạo ra một không gian sống đẳng cấp, hiện đại.
Các mẫu nhà tân cổ điển 4 tầng đẹp hợp xu hướng hiện nay
Những năm trở lại đây với sự sáng tạo và không ngừng đổi mới trong xu hướng thiết kế của ngành Kiến Trúc và Xây dựng đã có rất nhiều mẫu nhà ở ấn tượng được ra đời. Theo đó, những thiết kế mới này chủ yếu tập trung vào công năng sử dụng, mang đến sự thoải mái, tính bền vững mà vẫn đảm bảo được tính thẩm mỹ cao. Trong phần nội dung tiếp theo đây Vicohome sẽ cập nhật cho mọi người những mẫu nhà 4 tầng tân cổ điển hiện đại được nhiều người quan tâm nhất 2026.
Nhà 4 tầng tân cổ điển 2 mặt tiền
Do có 2 mặt tiền nên phần mặt tiền nhà 4 tầng tân cổ điển thường được thiết kế để gây ấn tượng mạnh, các bức tường được trang trí bằng gạch, đá cao cấp cùng hệ cửa sổ khung nghệ thuật.
Mặt tiền phụ thiết kế cửa ra vào riêng hoặc cửa sổ để tạo sự tiện nghi, linh hoạt cho gia chủ. Mẫu nhà này vẫn sử dụng các đường phào chỉ, hoa văn đặc trưng của phong cách tân cổ điển để tạo nên sự sang trọng, bề thế và hoành tráng cho ngôi nhà.

➤➤➤ Xem thêm: Thiết kế nhà phố 2 mặt tiền
Nhà phố tân cổ điển 4 tầng
Nhà phố 4 tầng tân cổ điển thường có mặt tiền từ 5–7m, sử dụng gam màu trung tính như trắng – kem – vàng nhạt, tạo cảm giác sang trọng. Phào chỉ nhẹ nhàng kết hợp cửa vòm và mái đón cong mềm mại tạo nên vẻ đẹp duyên dáng và trường tồn với thời gian.
Nhà ống tân cổ điển 4 tầng 1 tum
Mẫu nhà tân cổ điển 4 tầng 1 tum là sự kết hợp giữa vẻ đẹp cổ điển và tiện nghi. Thông qua các chi tiết trang trí đặc biệt như gạch, đá ốp tường và cửa sổ có khung nghệ thuật đã tạo nên một không gian sống đẳng cấp, độc đáo. Nếu như tầng 1 của mẫu nhà này thường sử dụng các gam nhã nhặn như trắng, đen, nâu, vàng nhằm khắc họa rõ nét kiến trúc hoàng gia.
Các tầng lầu trên của nhà ống 4 tầng tân cổ điển tập trung khai thác hai gam màu đen VÀ trắng để làm tôn lên thiết kế ban công bán nguyệt và ban công vuông xen kẽ. Riêng phần tầng tum là không gian đặc biệt được xây dựng trên mái nhà. Nó có thể sử dụng như một phòng thư viện, phòng làm việc hoặc không gian giải trí.

Nhà tân cổ điển 4 tầng mái thái
Kiểu nhà 4 tầng tân cổ điển mái thái phù hợp với khí hậu Việt Nam. Mái dốc cao giúp thoát nước tốt, đồng thời tạo vẻ cao ráo và thanh thoát. Các chi tiết mái được đắp phù điêu hoặc phào chỉ cổ điển giúp ngôi nhà thêm phần mềm mại và uyển chuyển.
Nhà 4 tầng tân cổ điển mái nhật
So với mái thái thì mái nhật có độ dốc nhẹ hơn, mang lại vẻ đẹp hiện đại hơn nhưng vẫn giữ được sự cân đối, bề thế. Mái nhật thường được phối màu tone xám hoặc xanh than, kết hợp với sơn tường trắng kem tạo nên tổng thể hài hòa.

Biệt thự tân cổ điển 4 tầng
Biệt thự tân cổ điển 4 tầng thường có diện tích lớn, mặt tiền rộng. Kiến trúc đăng đối, mái vòm cao, hệ cột Corinth đồ sộ cùng ban công sắt nghệ thuật chính là điểm nhấn tạo nên sự bề thế và lộng lẫy cho không gian sống đẳng cấp.
Mẫu nhà tân cổ điển 4 tầng kết hợp kinh doanh
Nhiều gia đình lựa chọn mẫu nhà tân cổ điển với 1–2 tầng dưới dành cho kinh doanh, còn tầng trên là không gian sinh hoạt. Thiết kế này không chỉ tiện lợi mà còn mang lại hiệu quả kinh tế cao, đặc biệt phù hợp với khu vực trung tâm đô thị.
Nhà 4 tầng tân cổ điển có hầm để xe
Điểm thu hút của mẫu nhà này tập trung ở phần mặt tiền với các cột trụ và ban công ốp phào nghệ thuật. Hệ thống cửa kính được sắp đặt đối xứng, tạo nên một bố cục cân đối cho phép ánh sáng tự nhiên xuyên vào không gian bên trong.
Tầng hầm được xây dựng nhằm tối ưu hóa diện tích sử dụng cho gia chủ, có thể sử dụng để đậu xe và lưu trữ đồ dùng. Góp phần tạo ra không gian gọn gàng, thông thoáng cho khoảng sân nhỏ trước nhà. Ngoài ra, mái bằng điêu khắc cùng gam màu trắng chủ đạo trong mẫu thiết kế này cũng tạo dấu ấn hiện đại và hài hòa cho ngôi nhà.
➤➤➤ Xem thêm: 50+ Mẫu Thiết kế nhà có tầng hầm để xe đẹp, tối ưu chi phí & tiện nghi
Nhà tân cổ điển 4 tầng 5x20m
Với diện tích 5x20m, nhà ống 4 tầng tân cổ điển vẫn toát lên vẻ sang trọng nếu được bố trí hợp lý. Mặt tiền nhỏ hẹp nhưng có thể xử lý bằng cách tạo điểm nhấn ở cửa chính, lan can sắt nghệ thuật và sử dụng vật liệu ốp đá sang trọng tầng trệt.
Mẫu nhà ống 4 tầng tân cổ điển có sân thượng
Trong thiết kế nhà 4 tầng tân cổ điển có sân thượng sẽ sử dụng một số yếu tố hiện đại kết hợp cổ điển như cửa kính lớn, hệ thống chiếu sáng hiện đại và các tiện nghi công nghệ tiên tiến.
Phần sân thượng được thiết kế mở, rộng rãi nhằm tạo không gian ngoại thất thư giãn, tầm nhìn ra xung quanh. Có thể được bố trí thành khu vực tiếp khách, khu vực nghỉ ngơi hoặc khu vườn xanh mát.
Mẫu nhà tân cổ điển 4 tầng mặt tiền 5m
Mặt tiền 5m phù hợp với mẫu nhà ống tân cổ điển 4 tầng, nơi kiến trúc sư cần cân nhắc bố trí cột trụ, ban công và mảng tường hợp lý để tạo cảm giác rộng rãi. Màu sắc trang nhã, kết hợp với phào chỉ nhẹ và đèn trang trí giúp công trình thêm ấn tượng.

Nhà tân cổ điển 4 tầng mặt tiền 7m
Mẫu nhà 4 tầng tân cổ điển mặt tiền 7m là lựa chọn lý tưởng để bố trí gara ô tô, sân nhỏ phía trước và công năng sử dụng bên trong rộng rãi. Kiến trúc đối xứng, cột trụ vững chắc và cửa sổ kính lớn là yếu tố giúp công trình thoáng và sang.

Nhà 4 tầng tân cổ điển mặt tiền 8m
Với lợi thế bề ngang, nhà phố 4 tầng tân cổ điển mặt tiền 8m có thể chia khối rõ ràng giữa khu vực chính và phụ. Việc sử dụng mái thái hoặc mái vòm sẽ giúp tăng thêm vẻ lộng lẫy cho mặt tiền công trình.

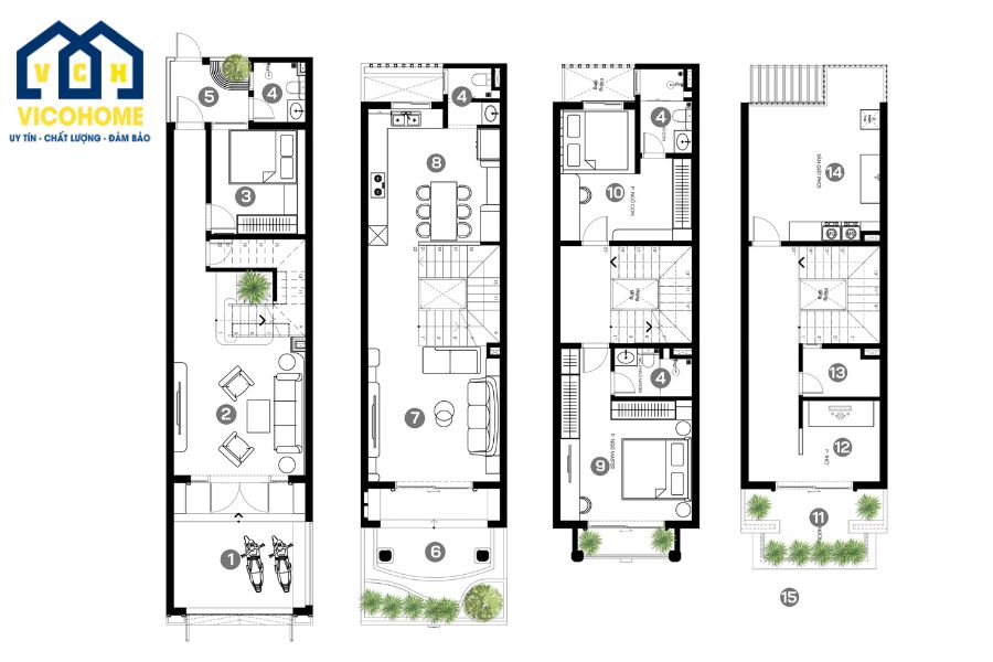
Bản vẽ nhà tân cổ điển 4 tầng
Bản vẽ nhà 4 tầng tân cổ điển thường bao gồm đầy đủ các không gian: gara, phòng khách, bếp ăn, phòng ngủ, phòng thờ, phòng sinh hoạt chung và sân phơi. Cách bố trí tuân thủ nguyên tắc đăng đối, ưu tiên ánh sáng tự nhiên và sự kết nối giữa các tầng thông qua cầu thang sang trọng.
Ngoài ra, hệ thống cột, tường chịu lực, cửa kính, lan can đều được thể hiện rõ trong bản vẽ kỹ thuật nhằm đảm bảo tính chính xác khi thi công.


Chi phí xây nhà 4 tầng tân cổ điển
Chi phí thiết kế và xây dựng một mẫu nhà tân cổ điển 4 tầng có thể biến đổi tùy thuộc vào nhiều yếu tố bao gồm: kích thước của ngôi nhà, vị trí địa lý, vật liệu sử dụng và các yêu cầu đặc biệt khác. Do chi tiết phức tạp của kiến trúc, cùng với việc sử dụng các vật liệu hoàn thiện đặc trưng nên hầu hết những mẫu nhà tân cổ điển thường đòi hỏi một khoản đầu tư cao hơn so với các mẫu nhà phố phổ biến khác hiện nay.
Ngoài chi phí xây dựng cơ bản như công nhân, vật liệu thiết bị xây dựng, các yếu tố sau đây có thể sẽ khiến tăng chi phí thi công:
- Vật liệu: Thường sử dụng các vật liệu cao cấp như đá tự nhiên, gỗ cứng, kính cường lực và nhôm đúc. Những vật liệu này thường có giá cao hơn so với các vật liệu thông thường khác.
- Phào chỉ và hoa văn: Việc sử dụng phào chỉ và hoa văn tinh tế, công phu trong thiết kế đòi hỏi sự khéo léo, thời gian làm việc chi tiết. Vì vậy, công nhân, thợ làm việc phải là những người có kỹ năng chuyên môn, điều này đồng nghĩa với việc sẽ khiến chi phí lao động tăng cao.
- Thiết kế chi tiết: Thiết kế tân cổ điển thường có các chi tiết phức tạp, cầu kỳ chẳng hạn như cột trụ, hình khối mái vòm và các yếu tố kiến trúc khác. Điều này đòi hỏi các kiến trúc sư phải chú ý đến từng chi tiết và có thể làm tăng chi phí thiết kế, xây dựng.
- Yêu cầu đặc biệt: Nếu gia chủ có yêu cầu đặc biệt như hệ thống điện thông minh, hệ thống làm mát hoặc hệ thống an ninh cao cấp, chi phí thiết kế lắp đặt cũng sẽ tăng lên.
Muốn có một ước tính chính xác, bạn nên tham khảo các chuyên gia thiết kế, nhà thầu xây dựng để xác định chi phí dựa trên yêu cầu, điều kiện cụ thể của dự án. Nếu lựa chọn Vicohome làm đơn vị đồng hành thiết kế xây dựng nhà 4 tầng tân cổ điển, bạn sẽ được hỗ trợ tư vấn miễn phí, nhận báo giá chi tiết cho từng hạng mục thi công.
Chúng tôi cam kết sẽ đưa ra mức giá cạnh tranh và tối ưu nhất, bám sát giá thị trường ở thời điểm hiện tại. Liên hệ ngay với Vicohome qua số Hotline: 096.119.95.95 để được tư vấn và hỗ trợ chi tiết nhất.
Kinh nghiệm thiết kế và xây nhà tân cổ điển 4 tầng

- Lập kế hoạch chi tiết từ đầu: Một bản kế hoạch kỹ lưỡng giúp xác định rõ phong cách, ngân sách và tiến độ thi công. Đây là bước quan trọng để đảm bảo dự án được triển khai hiệu quả và đúng định hướng thẩm mỹ.
- Dự trù và kiểm soát ngân sách chặt chẽ: Mẫu nhà 4 tầng tân cổ điển có chi phí cao do yêu cầu vật liệu và kỹ thuật phức tạp. Gia chủ nên dự trù thêm 10–15% ngân sách dự phòng cho các phát sinh trong quá trình thi công.
- Đảm bảo sự hài hòa giữa thẩm mỹ và công năng: Dù chú trọng vẻ ngoài sang trọng, thiết kế nhà tân cổ điển 4 tầng vẫn cần đảm bảo sự tiện nghi, thông thoáng, kết nối giữa các phòng và tận dụng tối đa không gian.
- Lựa chọn vật liệu phù hợp: Vật liệu đóng vai trò quyết định đến vẻ đẹp công trình. Cần ưu tiên đá ốp tự nhiên, sắt mỹ thuật, cửa kính khung nhôm cao cấp, cùng với các vật liệu nội thất tông cổ điển như gỗ, đồng, nỉ...
- Bố trí công năng phù hợp với nhu cầu sử dụng: Tùy theo nhu cầu thực tế của gia đình, cần bố trí số lượng phòng ngủ, phòng làm việc, kho, giặt phơi, phòng thờ,... hợp lý để tránh lãng phí không gian hoặc thiếu tiện nghi.
- Chú trọng phần hoàn thiện nội và ngoại thất: Các chi tiết như đèn trang trí, tay vịn cầu thang, sơn ngoại thất, hoa văn trần thạch cao,... cần được thi công tinh xảo để tôn vinh giá trị công trình.
- Chọn đơn vị thi công có kinh nghiệm: Kiến trúc tân cổ đòi hỏi tay nghề cao. Hãy hợp tác với đơn vị chuyên về nhà phố tân cổ điển 4 tầng đẹp, có xưởng sản xuất nội thất riêng và đội ngũ kỹ thuật giàu kinh nghiệm để đảm bảo chất lượng thi công.
Đối với những gia chủ thích vẽ đẹp tinh tế, sang trọng và thiết kế mặt bằng công năng khoa học thì mẫu nhà tân cổ điển 4 tầng sẽ là lựa chọn lý tưởng. Nếu bạn đang tìm kiếm một không gian sống đẳng cấp và mang giá trị thẩm mỹ cao thì hãy liên hệ ngay Vicohome để đội ngũ kiến trúc sư hỗ trợ, đưa ra những giải pháp phù hợp cho ngôi nhà của bạn.
Đánh giá - Bình luận
Có 0 bình luận, đánh giá về
Nhận xét và đánh giá