Sở hữu một ngôi nhà diện tích 40m2 tưởng chừng là giới hạn, nhưng với thiết kế thông minh và bố trí hợp lý, bạn hoàn toàn có thể biến nó thành không gian sống lý tưởng, đầy đủ công năng, thoáng đãng và đậm dấu ấn cá nhân. Trong bài viết này, chúng tôi sẽ gợi ý những mẫu thiết kế nhà 40m2 đẹp, kèm theo bản vẽ, chi phí thi công, cũng như mẹo thiết kế tối ưu không gian nhỏ. Nếu bạn đang tìm kiếm ý tưởng xây dựng nhà ở diện tích khiêm tốn, đây chính là hướng dẫn chi tiết dành cho bạn!

Những điều cần biết về mẫu nhà 40m2
Trước khi khám phá những mẫu thiết kế nhà nhỏ đẹp 40m2 và nguyên tắc quan trọng trong thiết kế, chúng ta cùng tìm hiểu đặc điểm và những điều cần biết về nhà diện tích 40m2.

Đặc điểm nổi bật của mẫu nhà nhỏ 40m2
-
Tối giản nhưng hiệu quả: Nhà 40m2 thường ưu tiên thiết kế hiện đại, tối giản để tối đa hóa diện tích sử dụng.
-
Tập trung vào chiều cao hoặc chiều sâu: Khi mặt bằng bị giới hạn, giải pháp nâng tầng (1 tầng, 2 tầng hoặc gác lửng) giúp tăng thêm diện tích sinh hoạt.
-
Tận dụng ánh sáng tự nhiên: Các mẫu nhà nhỏ 40m2 thường thiết kế nhiều cửa sổ, giếng trời hoặc dùng kính cường lực để lấy sáng, giúp nhà luôn thoáng mát.
-
Tối ưu công năng: Nội thất thông minh, đồ dùng tích hợp đa năng là lựa chọn ưu tiên khi thiết kế những không gian nhỏ.

Nhà 40m2 được xây mấy tầng?
Câu trả lời là hoàn toàn có thể! Với diện tích 40m2 – tương đương khoảng 4x10m, 5x8m hoặc 6x6.6m – bạn có thể xây dựng nhiều kiểu nhà khác nhau như nhà cấp 4, nhà 2 tầng, nhà có gác lửng hay nhà ống hiện đại. Dù nhỏ, nhưng nếu biết cách thiết kế nhà 40m2 hợp lý, bạn vẫn có thể sở hữu một không gian sống đầy đủ phòng chức năng như phòng khách, bếp, phòng ngủ và vệ sinh.

Nhà diện tích 40m2 phù hợp với ai?
Nếu bạn là người trẻ độc thân, vợ chồng mới cưới, hoặc gia đình nhỏ 2 – 3 thành viên thì mẫu thiết kế nhà 40m2 là lựa chọn phù hợp cả về chi phí và công năng. Với ngân sách xây dựng không quá lớn, thời gian thi công nhanh chóng, mẫu nhà này rất thích hợp để xây dựng tại thành phố, đô thị hoặc khu dân cư có diện tích đất hạn chế.

Các mẫu thiết kế nhà 40m2 đẹp và phổ biến

Nhà 40m2 1 tầng
Mẫu nhà này phổ biến tại nông thôn hoặc vùng ven đô, phù hợp với người không có nhu cầu xây tầng. Thiết kế thường ưu tiên sân vườn, mái ngói hoặc mái bằng, đảm bảo sự thông thoáng, tiện nghi và dễ bảo trì.

Mẫu nhà 40m2 2 tầng
Phân bổ công năng theo tầng: tầng 1 cho sinh hoạt chung, tầng 2 cho nghỉ ngơi. Mẫu nhà 2 tầng giúp nhân đôi diện tích sử dụng, phù hợp với các gia đình có 2–4 thành viên. Thiết kế mặt tiền đơn giản nhưng hiện đại là điểm cộng lớn.


Mẫu nhà 40m2 3 tầng
Thiết kế 3 tầng giúp bạn mở rộng không gian tối đa mà vẫn đảm bảo sự riêng tư cho từng thành viên. Có thể bố trí thêm phòng làm việc, phòng thờ hoặc khu giặt phơi riêng biệt ở tầng trên cùng.

Thiết kế nhà 40m2 4 tầng
Thường thấy ở khu vực đô thị, mẫu nhà 4 tầng trên nền diện tích nhỏ cần chú trọng thẩm mỹ mặt tiền và sự thông thoáng bên trong. Cầu thang đặt sát vách, sử dụng giếng trời và ban công giúp lấy sáng hiệu quả.

Thiết kế nhà 40m2 5 tầng
Phù hợp làm nhà phố kết hợp ở và kinh doanh. Tầng trệt có thể bố trí cửa hàng hoặc văn phòng nhỏ, các tầng trên dùng để ở. Phải tính toán kỹ hệ thống chịu lực, thông gió và thoát hiểm an toàn.

Nhà đẹp 40m2 tinh tế
Mẫu nhà 40m2 đẹp thường gây ấn tượng nhờ sự phối hợp hài hòa giữa màu sắc, ánh sáng và cách bố trí nội thất. Không gian được “kéo rộng” nhờ gương, cửa kính lớn và thiết kế liên thông phòng khách – bếp – ăn.

Mẫu nhà 40m2 đơn giản
Không quá cầu kỳ, mẫu nhà 40m2 đơn giản tập trung vào công năng sử dụng và tối ưu chi phí. Những đường nét vuông vức, nội thất cơ bản, sơn trắng hoặc xám nhẹ mang lại cảm giác hiện đại, dễ chịu.

Thiết kế nhà 40m2 1 phòng ngủ
Đây là mẫu nhà lý tưởng cho người độc thân, cặp vợ chồng trẻ hoặc gia chủ lớn tuổi. Phòng ngủ rộng rãi, không gian sinh hoạt chung được ưu tiên thoáng mở, giúp ngôi nhà trông rộng rãi và thư giãn hơn.

Thiết kế nhà 40m2 2 phòng ngủ
Mẫu thiết kế nhà nhỏ đẹp 40m2 phù hợp với gia đình nhỏ 2 đến 4 người thường ưu tiên bố trí không gian mở giữa phòng khách và bếp để tiết kiệm diện tích. Hai phòng ngủ có thể phân chia theo dạng đối xứng hoặc tách biệt để tạo sự riêng tư. Tone màu sáng và nội thất đa năng là lựa chọn lý tưởng cho mẫu này.

Thiết kế nhà 40m2 3 phòng ngủ
Với diện tích hạn chế, bố trí 3 phòng ngủ đòi hỏi sự khéo léo trong sắp xếp. Thường thì một phòng ngủ nhỏ sẽ được tích hợp giường tầng hoặc dạng gác xép, kết hợp với không gian sinh hoạt chung gọn gàng. Mẫu này phù hợp với gia đình có 2 con nhỏ hoặc người cần thêm phòng làm việc.


Thiết kế nhà 40m2 4 phòng ngủ
Mẫu này thường áp dụng cho nhà nhiều tầng (ít nhất từ 3 tầng trở lên). Mỗi tầng có thể bố trí 1–2 phòng ngủ nhỏ, kết hợp tối đa nội thất thông minh, phòng tắm dùng chung để tiết kiệm diện tích.

Thiết kế nhà phố 40m2
Mang tính thẩm mỹ cao, nhà phố 40m2 chú trọng mặt tiền và không gian linh hoạt bên trong. Phù hợp với người sống ở đô thị cần sự hiện đại, đầy đủ tiện nghi và tối ưu diện tích.

Mẫu nhà 40m2 đẹp hiện đại
Với diện tích không lớn nên mẫu nhà diện tích 40m2 thường được thiết kế theo phong cách hiện đại để tối ưu không gian sử dụng và tạo sự tiện nghi cho ngôi nhà. Với những đường nét đơn giản, góc cạnh vuông vắn được kết hợp giếng trời với cửa sổ lớn giúp tối ưu ánh ánh và thông gió. Thiết kế hiện đại kết hợp nội thất thông minh giúp không gian của nhà nhỏ 40m2 trở nên rộng rãi hơn.

Thiết kế nhà ống 40m2
Đặc trưng bởi chiều ngang hẹp và chiều sâu lớn, mẫu nhà ống 40m2 thường có mặt tiền 3–5m. Cần khéo léo trong thiết kế cầu thang, thông tầng và chiếu sáng để tránh bí bách. Mặt tiền thường mang phong cách hiện đại hoặc tân cổ điển.

Thiết kế nhà 40m2 cấp 4
Mẫu nhà cấp 4 40m2 thường mang nét mộc mạc, giản dị và rất phù hợp với người cao tuổi hoặc người ưa thích sự yên bình. Có thể kết hợp thêm gác lửng nếu muốn tăng thêm không gian sử dụng.


Nhà tiền chế 40m2
Là giải pháp nhanh, gọn và tiết kiệm cho người có ngân sách hạn chế hoặc cần xây dựng tạm thời. Nhà tiền chế 40m2 sử dụng khung thép, tấm panel cách nhiệt, thi công trong 1–2 tuần nhưng vẫn đảm bảo đầy đủ tiện nghi.

Mẫu nhà 40m2 có thang máy
Thích hợp cho nhà cao tầng hoặc người lớn tuổi, thang máy mini được tích hợp gọn vào góc nhà hoặc phía sau cầu thang bộ. Dù diện tích nhỏ, việc lắp đặt thang máy vẫn khả thi với thiết kế kỹ lưỡng từ đầu.

Mẫu nhà 40m2 có gác lửng
Gác lửng giúp tăng diện tích sử dụng đáng kể mà không cần xây tầng. Khu vực này có thể làm phòng ngủ, phòng làm việc hoặc kho chứa đồ. Mẫu nhà này phù hợp với người trẻ, ngân sách vừa phải.

Thiết kế nhà vuông 40m2
Với hình dáng cân đối, nhà vuông 40m2 giúp dễ dàng bố trí nội thất, tạo cảm giác rộng rãi. Có thể xây kiểu nhà cấp 4, nhà 1 tầng hoặc kết hợp sân vườn tùy theo nhu cầu.

Thiết kế nhà 40m2 mặt tiền 3m
Với mặt tiền hẹp, cần chú trọng vào chiều sâu, giếng trời và hệ cửa kính lớn để đảm bảo thông thoáng. Có thể thiết kế từ 2 đến 4 tầng, sử dụng phong cách hiện đại, tối giản để không gây rối mắt.

Mẫu nhà 40m2 mặt tiền 4m
Tỷ lệ mặt tiền 4m là phổ biến nhất trong các khu nhà ống hiện nay. Thiết kế dễ cân đối giữa thẩm mỹ và công năng. Có thể áp dụng các mẫu nhà 2 tầng, 3 tầng hoặc có gác lửng tùy ngân sách.

Mẫu nhà 40m2 mặt tiền 5m
Diện tích này cho phép mặt tiền trở nên bắt mắt và ấn tượng hơn. Có thể tích hợp gara, ban công rộng, hoặc các mảng xanh trang trí. Phù hợp với thiết kế mái bằng hoặc mái lệch hiện đại.

Nguyên tắc thiết kế nhà nhỏ đẹp 40m2
Diện tích 40m2 không quá lớn, do đó việc bố trí không gian một cách hợp lý là yếu tố then chốt để đảm bảo ngôi nhà vẫn thông thoáng, tiện nghi và thẩm mỹ. Dưới đây là những nguyên tắc thiết kế nhà 40m2 giúp tối ưu công năng và tạo cảm giác rộng rãi hơn cho không gian sống.

Thiết kế không gian mở và ít ngăn chia
Không gian mở là “chìa khóa vàng” trong thiết kế nhà nhỏ. Thay vì phân chia nhà thành nhiều phòng kín bằng tường hoặc vách ngăn cứng nhắc, bạn nên hướng đến sự liên kết giữa các khu vực chức năng. Ví dụ, phòng khách – bếp – phòng ăn có thể bố trí liền mạch trong cùng một không gian, chỉ cần phân định bằng sự khác biệt về màu sắc, nội thất hoặc thảm trải sàn. Thiết kế không gian mở giúp tăng cường sự kết nối giữa các thành viên trong gia đình, đồng thời tạo cảm giác căn nhà 40m2 như rộng rãi hơn thực tế rất nhiều.

Thiết kế nội thất nhà 40m2
Một trong những yếu tố quan trọng khi thiết kế nhà 40m2 là lựa chọn nội thất thông minh và đa năng. Những mẫu giường có ngăn kéo dưới, bàn ăn gập gọn, ghế tích hợp tủ đồ hay sofa kết hợp giường ngủ… sẽ giúp tiết kiệm tối đa diện tích mà vẫn đảm bảo sự tiện nghi.
Ngoài ra, nên ưu tiên các thiết kế nội thất âm tường, tủ kéo, bàn làm việc gắn tường… để mở rộng không gian đi lại và giảm bớt sự bừa bộn cho căn nhà nhỏ.

Tận dụng chiều cao
Với nhà có diện tích sàn hạn chế, chiều cao chính là lợi thế không nên bỏ qua. Bạn có thể thiết kế gác lửng, tầng lửng hoặc sử dụng kệ treo tường, tủ cao kịch trần để gia tăng không gian lưu trữ. Đối với nhà 40m2 có chiều cao trần trên 3,2m, việc bổ sung thêm gác lửng để làm phòng ngủ, nơi làm việc hoặc kho chứa đồ là một giải pháp rất thông minh, vừa tiết kiệm chi phí lại vừa mở rộng công năng sử dụng đáng kể.
Ưu tiên ánh sáng tự nhiên và thông gió
Ánh sáng và không khí tự nhiên là “liều thuốc” giúp mở rộng thị giác và mang lại cảm giác thoáng đãng cho nhà nhỏ. Khi thiết kế nhà 40m2, hãy đảm bảo có đủ cửa sổ, giếng trời hoặc ô thông gió hợp lý. Nên sử dụng vách kính, cửa kính lớn, kết hợp rèm mỏng màu sáng để ánh sáng tự nhiên lan tỏa khắp không gian. Đồng thời, hệ thống cửa sổ đối lưu gió sẽ giúp không khí trong nhà luôn mát mẻ và trong lành.
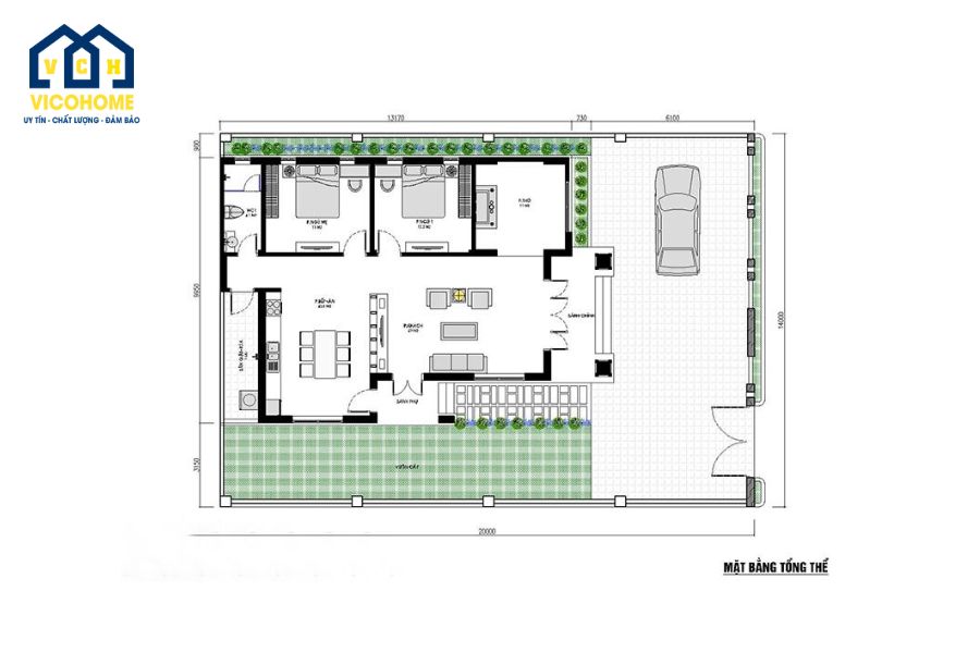
Mẫu bản vẽ nhà 40m2
Với diện tích chỉ 40m2, việc bố trí mặt bằng khoa học đóng vai trò then chốt trong việc tạo ra không gian sống tiện nghi và thoải mái. Tùy vào nhu cầu sử dụng và quy mô xây dựng (1 tầng, 2 tầng, 3 tầng hay 4 tầng), gia chủ có thể lựa chọn các phương án thiết kế phù hợp dưới đây.

Bản vẽ nhà cấp 4 40m2
Nhà cấp 4 với diện tích 40m2 thường ưu tiên thiết kế 1 phòng khách, 1 phòng ngủ, bếp và vệ sinh chung. Phù hợp với gia đình nhỏ, cặp vợ chồng trẻ hoặc người sống một mình. Bản vẽ thiết kế nhà 40m2 cấp 4 nên áp dụng không gian mở giữa phòng khách và bếp để tạo cảm giác rộng rãi.

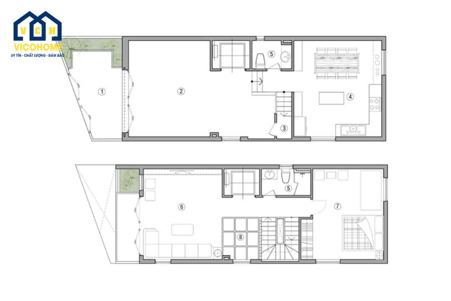
Bản vẽ nhà 2 tầng 40m2
Phương án nhà 2 tầng giúp nhân đôi diện tích sử dụng. Tầng 1 bố trí không gian sinh hoạt chung gồm phòng khách, bếp và nhà vệ sinh. Tầng 2 có thể thiết kế 2 phòng ngủ và 1 nhà vệ sinh nhỏ, đảm bảo tiện nghi cho gia đình 2 – 3 thành viên.

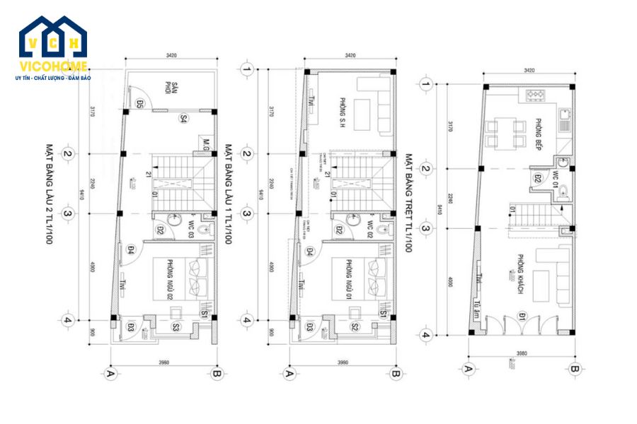
Bản vẽ nhà 3 tầng 40m2
Với chiều cao 3 tầng, không gian sử dụng được chia tách rõ ràng theo công năng. Tầng 1 gồm phòng khách, bếp và nhà vệ sinh. Tầng 2 là không gian riêng tư với 2 phòng ngủ. Tầng 3 bố trí thêm 1 phòng ngủ, sân giặt phơi hoặc phòng làm việc nhỏ.

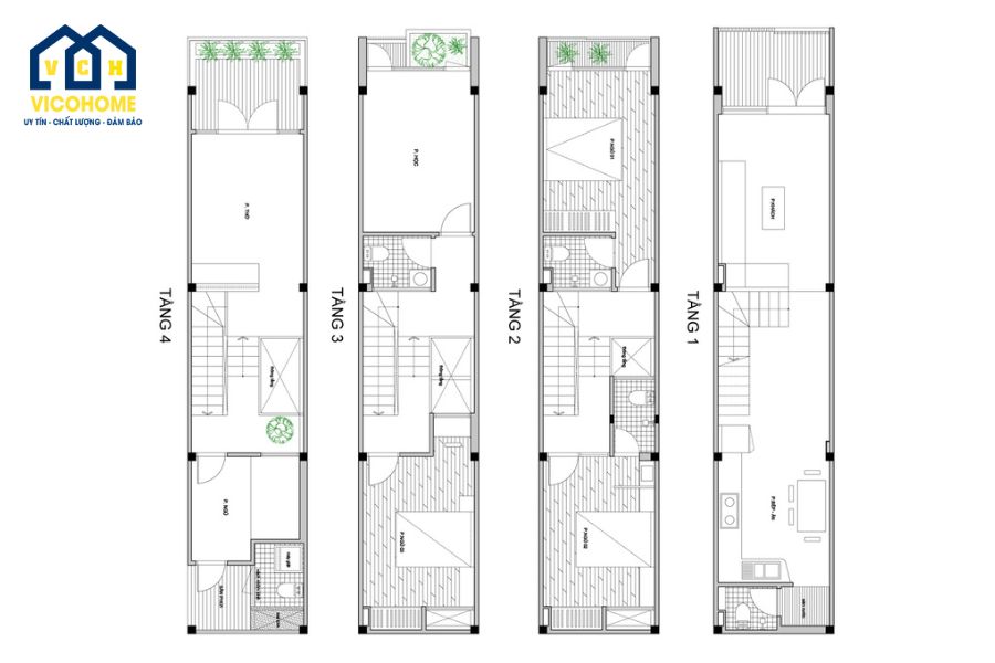
Bản vẽ nhà 40m2 4 tầng
Nhà 4 tầng phù hợp với gia đình đông người hoặc người cần vừa ở vừa kinh doanh. Bản vẽ thiết kế nhà 40m2 4 tầng điển hình gồm:
-
Tầng 1: không gian kinh doanh hoặc phòng khách + bếp
-
Tầng 2 – 3: bố trí phòng ngủ, phòng sinh hoạt
-
Tầng 4: phòng thờ, sân phơi

Nếu bạn cần bản vẽ chi tiết hoặc tư vấn thiết kế mặt bằng nhà 40m2 theo nhu cầu riêng, hãy để lại thông tin liên hệ hoặc gọi điện để Vicohome hỗ trợ nhanh chóng nhé!
Xây nhà 40m2 hết bao nhiêu tiền
Chi phí xây dựng nhà 40m2 sẽ phụ thuộc vào nhiều yếu tố như số tầng, kiểu kiến trúc, vật liệu sử dụng, khu vực thi công (thành phố hay nông thôn), và hình thức xây dựng (truyền thống hay tiền chế). Dưới đây là các mức chi phí tham khảo để bạn có thể lên kế hoạch tài chính hợp lý.

Xây nhà 1 tầng 40m2 hết bao nhiêu tiền
Với diện tích nhỏ, nhà 1 tầng 40m2 thường phù hợp với hộ gia đình ít người hoặc người sống độc thân. Chi phí xây dựng dao động từ 280 – hơn 400 triệu đồng, tùy vào kiểu mái (mái tôn, mái bằng, mái thái) và vật liệu hoàn thiện
-
Gói tiết kiệm: 280 – 320 triệu (mái tôn, vật liệu phổ thông).
-
Gói trung bình khá: 350 – 400 triệu (mái bằng, vật liệu khá).
-
Gói khá tốt: từ 400 triệu (mái ngói Nhật, hoàn thiện cơ bản).
Xây nhà 2 tầng 40m2 hết bao nhiêu tiền
Nhà 2 tầng 40m2 giúp nhân đôi diện tích sử dụng, thường gồm 2 – 3 phòng ngủ..
-
Gói cơ bản: 850– 900 triệu (mái tôn, hoàn thiện đơn giản).
-
Gói khá: từ 900 triệu (mái bằng hoặc mái Nhật).
Xây nhà 3 tầng 40m2 hết bao nhiêu tiền
Với 3 tầng, bạn có thể bố trí đủ không gian cho gia đình đông người hoặc tích hợp thêm không gian làm việc. Chi phí xây nhà 3 tầng 40m2 dao động từ 650 – 850 triệu đồng, tăng theo độ phức tạp và phong cách kiến trúc.
-
Mức cơ bản: 650 – 700 triệu (thi công thô + hoàn thiện đơn giản).
-
Mức khá: 750 – 850 triệu (mái bằng/mái Nhật, hoàn thiện đẹp).
Xây nhà 4 tầng 40m2 hết bao nhiêu tiền
Nếu cần tối ưu tối đa diện tích sử dụng, nhà 4 tầng 40m2 là lựa chọn lý tưởng. Mức giá xây dựng dao động từ 850 triệu – 1,1 tỷ đồng, tùy thuộc vật liệu, phong cách thiết kế và nội thất.
-
Thiết kế hiện đại, vật tư phổ thông: 1 -1,2 tỷ
-
Thiết kế tân cổ điển, vật tư khá: ~1,3 – 1,5 tỷ đồng.
Chi phí xây nhà tiền chế 40m2
Nếu bạn cần thi công nhanh, chi phí tiết kiệm, thì nhà tiền chế 40m2 là giải pháp hiệu quả. Mức đầu tư thường dao động từ 150 – 350 triệu đồng, phù hợp làm nhà kho, nhà trọ, nhà ở tạm thời.
-
Khung thép mái tôn: ~150 – 200 triệu.
-
Hoàn thiện đẹp hơn (ốp tường, WC, cách nhiệt): ~250 – 350 triệu.
Lưu ý: Giá trên là tham khảo năm 2025, chưa bao gồm chi phí thiết kế, giấy phép xây dựng, nội thất cao cấp hoặc các yêu cầu kỹ thuật đặc biệt. Để biết con số chính xác hơn, bạn nên liên hệ các đơn vị xây dựng uy tín để được báo giá chi tiết theo nhu cầu thực tế.:
Những lưu ý khi thiết kế và xây nhà 40m2
Với diện tích khiêm tốn chỉ 40m2, việc thiết kế nhà 40m2 không gian sống đòi hỏi sự tinh tế, hợp lý và khoa học. Dưới đây là một số lưu ý quan trọng giúp bạn tối ưu hóa diện tích, đảm bảo công năng, tính thẩm mỹ và sự tiện nghi trong sinh hoạt hàng ngày.

Chọn phong cách thiết kế phù hợp với diện tích nhỏ
Đối với nhà diện tích nhỏ, phong cách thiết kế hiện đại, tối giản (minimalism) hoặc Scandinavian thường là lựa chọn tối ưu. Các phong cách này giúp không gian trở nên thoáng đãng, gọn gàng và tiện nghi nhờ đường nét đơn giản, màu sắc trung tính và hạn chế đồ dùng rườm rà. Tránh các phong cách cổ điển với nhiều chi tiết cầu kỳ vì dễ gây rối mắt và khiến nhà trở nên chật chội hơn.

Chú ý chống nóng, thoát nước và ánh sáng
Một căn nhà nhỏ muốn bền đẹp và dễ ở thì không thể bỏ qua các yếu tố kỹ thuật như:
-
Chống nóng: Sử dụng vật liệu cách nhiệt cho mái và trần, thiết kế giếng trời, trồng cây xanh hoặc lắp rèm chống nắng.
-
Thoát nước: Thiết kế hệ thống thoát nước mưa và nước thải khoa học, đảm bảo không đọng nước gây ẩm mốc.
-
Ánh sáng: Ưu tiên ánh sáng tự nhiên bằng cách mở cửa sổ lớn, lắp kính lấy sáng hoặc giếng trời. Kết hợp thêm đèn LED ánh sáng trắng giúp không gian thêm rộng và sáng sủa.
Ưu tiên công năng sử dụng thực tế
Với diện tích 40m2, điều quan trọng là phải ưu tiên tính thực dụng trong từng chi tiết thiết kế. Mỗi khu vực nên có mục đích sử dụng rõ ràng và được quy hoạch hợp lý. Tránh sử dụng những món đồ nội thất không cần thiết hoặc không phục vụ nhu cầu sinh hoạt hằng ngày. Ví dụ: một chiếc ghế sofa có thể tích hợp ngăn chứa đồ, hoặc giường ngủ có hộc kéo giúp tiết kiệm không gian lưu trữ.
Không nên cố chia quá nhiều phòng
Việc chia nhỏ không gian sẽ khiến nhà trở nên bí bách, tù túng và thiếu ánh sáng. Với nhà 40m2, bạn nên thiết kế theo hướng không gian mở, hạn chế tối đa các vách ngăn cứng. Thay vào đó, hãy dùng các giải pháp ngăn nhẹ như kệ mở, rèm vải, cửa kính hoặc thay đổi chất liệu sàn để phân tách khu vực chức năng một cách tinh tế mà vẫn giữ được sự thông thoáng.

Giải pháp thông gió tự nhiên
Thông gió là yếu tố sống còn trong thiết kế nhà nhỏ. Nếu không được xử lý tốt, ngôi nhà sẽ dễ bị ẩm mốc, hầm bí và nóng bức. Bạn có thể áp dụng các giải pháp như: mở cửa sổ đối xứng để tạo luồng gió xuyên phòng, sử dụng cửa lùa kính kết hợp rèm mỏng, hoặc thiết kế ô thông tầng nhỏ nếu là nhà cao tầng. Ngoài ra, quạt thông gió âm tường cũng là một giải pháp hữu hiệu cho những khu vực kín như nhà vệ sinh, bếp.
Trên đây là tổng hợp những mẫu thiết kế nhà 40m2 đẹp và tối ưu công năng sử dụng, cùng với đó là những kinh nghiệm xây dựng và nguyên tắc thiết kế quan trọng để các bạn tham khảo. Để đưa ra quyết định tốt nhất và có được ngôi nhà đẹp, tiện nghi và phù hợp cần có kế hoạch và tính toán thật chi tiết. Nếu quý bạn đang có nhu cầu xây nhà 40m2 nhưng còn gặp nhiều vấn đề, nhiều thắc mắc hoặc đang cần tìm hiểu thêm hay liên hệ với Vicohome để được hỗ trợ nhé.
Đánh giá - Bình luận
Có 0 bình luận, đánh giá về
Nhận xét và đánh giá