Hiện nay nhà mái Nhật 2 tầng đang ngày càng phổ biến rộng rãi và là xu hướng thiết kế được nhiều gia đình Việt lựa chọn. Với nét đẹp tinh tế và tiện nghi, có sự hài hòa giữa thẩm mỹ và công năng nên mẫu mái Nhật luôn là một trong những mẫu thiết kế lý tưởng. Điểm nổi bật của mẫu nhà này là phù hợp với cả không gian đô thị và nông thôn, có thể thiết kế theo phong cách tân cổ điển hoặc hiện đại, thiết kế mái Nhật rất phù hợp với khí hậu tại Việt Nam. Nếu bạn đang tìm mẫu nhà lý tưởng cho ngôi nhà của mình thì tham khảo ngay những mẫu thiết kế, mẫu bản vẽ và kinh nghiệm xây nhà 2 tầng mái Nhật dưới đây.

Nhà mái Nhật 2 tầng là gì?
Nhà mái Nhật là những ngôi nhà được thiết kế với hệ mái ngói hoặc giả ngói xếp chồng lớp lên nhau thành hình chóp có 1 đỉnh hoặc 2 đỉnh. Khác với mái thái, hệ mái Nhật có độ dốc nhẹ hơn và lợp mái kín bốn phía.
Nhà mái Nhật đẹp 2 tầng đang ngày càng được ưa chuộng tại Việt Nam bởi độ bền bỉ, khả năng chống chịu với thời tiết tốt cùng với đó là tính thẩm mỹ cao. Mẫu nhà 2 tầng mái Nhật này có thể kết hợp được với nhiều phong cách thiết kế khác nhau từ tối giản, hiện đại cho tới cổ điển, tân cổ điển,... đáp ứng được đa dạng về sở thích cũng như nhu cầu của chủ đầu tư.

Đặc điểm kiến trúc nhà 2 tầng mái Nhật
- Nhà mái Nhật 2 tầng là một trong những xu hướng kiến trúc đang được ưa chuộng tại Việt Nam hiện nay, bắt nguồn từ phong cách kiến trúc của xứ sở hoa anh đào. Kiểu mái này được gọi là mái Nhật (mái lùn), mang dáng dốc nhẹ, thanh thoát, thường có phần mái đua rộng tạo nên cảm giác vững chãi, bảo vệ hiệu quả công trình trước thời tiết mưa nắng.
- Không chỉ giữ lại sự tinh tế, hài hòa của văn hóa Nhật, kiến trúc mái Nhật còn được biến tấu linh hoạt để phù hợp với điều kiện khí hậu, lối sống và thị hiếu người Việt. Kết hợp giữa vẻ đẹp Á Đông và yếu tố hiện đại, các mẫu nhà mái Nhật hai tầng thường đem lại cảm giác gần gũi, thanh lịch nhưng vẫn tiện nghi và sang trọng.
- Về kết cấu, nhà 2 tầng mái Nhật sẽ được chia ra thành 2 loại cụ thể như sau:
-
Nhà mái Nhật 2 tầng có hệ ngói dốc: Dạng mái này nhìn sẽ khá giống như mái Thái, nhưng nếu để ý sẽ thấy kiểu mái này có độ dốc sẽ nhỏ hơn mái Thái, giúp tạo nên sự tinh tế và thanh thoát cho ngôi nhà. Hệ mái cũng được mở rộng ra các hướng để tăng khả năng thoát nước.

-
Nhà 2 tầng mái Nhật với hệ ngói bằng: Dạng mái này sẽ đổ rộng ra 4 góc, có độ dốc thấp nhưng, phần mái sẽ vươn dài ra hơn 4 phía của ngôi nhà tạo thành các mái hiên rộng đảm bảo việc thoát nước cho công trình.

Kiểu nhà mái Nhật 2 tầng phù hợp với những khu vực nào?
Các mẫu thiết kế nhà 2 tầng mái Nhật đẹp có thể được ứng dụng linh hoạt nhưng chủ yếu ở vùng nông thôn và ngoại thành.
-
Ngoại ô và vùng nông thôn: Nếu bạn sở hữu mảnh đất rộng, các kiểu mẫu nhà vườn 2 tầng mái Nhật, nhà biệt thự 2 tầng mái Nhật, hoặc mẫu nhà mái Nhật hai tầng ở nông thôn sẽ là lựa chọn lý tưởng nhờ khả năng kết hợp sân vườn, tiểu cảnh mát mẻ.
-
Khu nghỉ dưỡng, homestay: Những thiết kế nhà mái Nhật đẹp 2 tầng có sân vườn, có gara hoặc có bể bơi riêng thường được lựa chọn làm nơi nghỉ dưỡng hoặc kinh doanh dịch vụ lưu trú nhờ tính thẩm mỹ và tiện nghi ca

Vì sao nhà 2 tầng mái Nhật được ưa chuộng?
Mặc dù thị trường nhà ở càng ngày càng đa dạng, thế nhưng sức hút của nhà đẹp 2 tầng mái Nhật vẫn không hề giảm sút. Ngay cả khi có rất nhiều phong cách thiết kế nhà ở mới mẻ thì đây vẫn là mẫu được ưu tiên hơn rất nhiều. Không phải ngẫu nhiên mà những mẫu thiết kế nhà mái Nhật 2 tầng đẹp lại trở thành lựa chọn hàng đầu của nhiều gia đình. Dưới đây là một số lý do chính lý giải sức hút của kiểu nhà này:

-
Tính thẩm mỹ cao: Thiết kế mái nhẹ nhàng, cân đối giúp tổng thể ngôi nhà trở nên thanh thoát, hài hòa với cảnh quan xung quanh. Điểm độc đáo của mẫu nhà này nằm ở hệ thống mái ngói, kết hợp hài hòa giữa phong cách Nhật và Thái, do đó ngôi nhà nhìn từ bên ngoài luôn đảm bảo được tính thẩm mỹ và độ thu hút cao.

-
Phù hợp với nhiều phong cách: Mẫu nhà mái Nhật 2 tầng là sự kết hợp, giao thoa độc đáo và tinh tế giữa kiến trúc Á - Âu. Từ phong cách hiện đại, tân cổ điển đến nhà vườn nông thôn, kiểu mái Nhật đều có thể “biến hóa” linh hoạt.

-
Diện tích linh hoạt: Thiết kế nhà 2 tầng mái Nhật phù hợp với mọi không gian, diện tích và có thể xây theo nhiều kiểu khác nhau từ nhà cấp 4, nhà phố, nhà sân vườn… cho tới biệt thự.
-
Công năng tối ưu: Đáp ứng hoàn hảo nhu cầu sinh hoạt cho các hộ gia đình từ 3 đến 5 người, thậm chí là nhiều hơn nếu diện tích xây dựng lớn mà vẫn đảm bảo được không gian riêng cho các thành viên trong gia đình.

-
Khả năng chống nóng và chống mưa tốt: Độ dốc mái vừa phải cùng phần mái đua rộng giúp thoát nước nhanh, chống thấm hiệu quả, rất phù hợp với khí hậu Việt Nam. Bên cạnh đó, khả năng làm mát và chống nóng của mái Nhật cũng được đánh giá cao, đem lại không gian mát mẻ cho ngôi nhà.

-
Chi phí hợp lý: So với mái Thái hay mái Mansard, chi phí xây nhà 2 tầng mái Nhật thường tiết kiệm hơn nhờ kết cấu đơn giản nhưng vẫn đảm bảo tính thẩm mỹ.
Những mẫu nhà mái Nhật 2 tầng đẹp theo phong cách

Mẫu nhà biệt thự 2 tầng mái Nhật
Nếu bạn đang tìm kiếm một không gian sống sang trọng và đẳng cấp, nhà biệt thự 2 tầng mái Nhật là lựa chọn tuyệt vời. Kiến trúc biệt thự kết hợp với mái Nhật tạo nên một tổng thể vừa hiện đại, vừa mềm mại nhờ những đường cong uốn lượn của mái. Không gian sân vườn rộng, hệ cửa kính lớn, ban công thoáng cùng mái ngói tone màu trung tính như xanh ghi, nâu trầm là những đặc trưng thường thấy. Mẫu này thích hợp với những gia đình có quỹ đất lớn, yêu cầu cao về thẩm mỹ và công năng.

Mẫu nhà mái Nhật 2 tầng hiện đại
Mẫu nhà 2 tầng mái Nhật hiện đại được tối ưu đầy đủ công năng nhưng vẫn thể hiện sự tinh tế và sang trọng. Đây là mẫu thiết kế yêu thích của những gia đình trẻ yêu thích phong cách sống hiện đại và tinh tế. Phong cách thiết kế đơn giản, hiện đại nhưng vẫn đảm bảo đầy đủ công năng cho cả gia đình sử dụng.


Mẫu nhà mái Nhật 2 tầng tân cổ điển
Phong cách tân cổ điển luôn là sự kết hợp hoàn hảo với mái Nhật, vì vậy mẫu nhà 2 tầng mái Nhật tân cổ điển luôn được ưa chuộng không kém phong cách hiện đại. Nét đẹp đầy tinh tế và sang trọng của kiến trúc cổ kết hợp hài hòa với sự hiện đại đầy đủ tiên nghi là đặc trưng của mẫu nhà này.


Mẫu nhà ống 2 tầng mái Nhật
Nhà ống mái Nhật 2 tầng là lựa chọn phổ biến tại các đô thị có quỹ đất hẹp. Thiết kế dạng ống giúp tận dụng tối đa chiều sâu lô đất, trong khi phần mái Nhật tạo điểm nhấn mềm mại cho mặt tiền. Ưu điểm lớn của mẫu nhà này là tối ưu công năng, thông gió tự nhiên tốt và vẫn đảm bảo tính thẩm mỹ. Phù hợp với mặt tiền từ 4m đến 6m, các mẫu nhà mái Nhật 2 tầng mặt tiền 5m, 6m thường có ban công nhỏ phía trước, cửa sổ bên hông hoặc giếng trời để đảm bảo ánh sáng và không khí lưu thông.

Nhà mái Nhật 2 tầng đơn giản
Mẫu nhà đẹp 2 tầng mái Nhật đơn giản thường nổi bật với kiến trúc tinh gọn, không cầu kỳ trong chi tiết. Thiết kế tối giản nhưng vẫn đầy đủ công năng, phù hợp với những gia đình yêu thích sự nhẹ nhàng, tiện nghi. Kiểu nhà này thường có mặt tiền vuông vức, ban công nhỏ thoáng đãng, sử dụng màu sắc trung tính như trắng, be, xám để tạo cảm giác rộng rãi và thanh lịch.
Đặc biệt, chi phí xây dựng các mẫu nhà mái Nhật hai tầng đơn giản khá tiết kiệm, dễ thi công và dễ bảo trì. Đây là lựa chọn lý tưởng cho những ai đang tìm kiếm mẫu nhà mái Nhật hai tầng đẹp giá rẻ nhưng vẫn đảm bảo thẩm mỹ và công năng.

Mẫu nhà vuông 2 tầng mái Nhật
Thiết kế mẫu nhà vuông 2 tầng mái Nhật mang đến cảm giác vững chắc, hài hòa và dễ dàng bố trí không gian nội thất. Kiểu nhà vuông đặc biệt phù hợp với các mảnh đất có kích thước tương đối đều ở chiều ngang và chiều dài như 8x12m, 9x12m hay 10x10m. Điểm cộng lớn nhất của mẫu này là tính đối xứng và phong thủy tốt, điều rất được coi trọng trong xây dựng nhà ở của người Việt. Phối cảnh mái Nhật với mái dốc nhẹ bao quanh cả 4 mặt càng làm tăng giá trị thẩm mỹ cho công trình.

Mẫu nhà mái Nhật 2 tầng chữ L
Đây là mẫu thiết kế phù hợp cho nhà có diện tích rộng để tạo khoảng sân phía trước hoặc bên hông. Mẫu nhà chữ L mái Nhật được rất nhiều người yêu thích vì tính thẩm mỹ cao, tạo sự thông thoáng và không gian sinh hoạt tiện nghi.


Mẫu nhà hộp 2 tầng mái Nhật
Mẫu nhà hộp 2 tầng mái Nhật có kiến trúc hình khối vuông vắn, mặt tiền rộng và khỏe khoắn. Sự kết hợp giữa mái Nhật và hình khối đơn giản giúp tạo nên nét hiện đại, tối giản mà vẫn nổi bật. Đặc biệt phù hợp với xu hướng thiết kế trẻ trung, năng động hiện nay. Mẫu nhà này cũng rất được ưa chuộng tại các khu dân cư mới, khu biệt thự phố.

Mẫu nhà mái Nhật 2 tầng 2 mặt tiền
Mẫu nhà 2 tầng mái Nhật 2 mặt tiền phù hợp với các vị trí lô góc, có lợi thế về tầm nhìn và ánh sáng. Thiết kế này thường tận dụng được tối đa vẻ đẹp ngoại thất, dễ tạo điểm nhấn với ban công mở, cửa sổ lớn và tiểu cảnh bên ngoài. Với 2 mặt thoáng, việc bố trí công năng bên trong cũng linh hoạt hơn, đồng thời tăng giá trị thẩm mỹ và giá trị đầu tư cho công trình, đặc biệt nếu dùng để ở kết hợp kinh doanh.

Mẫu nhà 2 tầng mái Nhật ở nông thôn
Tại vùng quê, các mẫu nhà mái Nhật đẹp 2 tầng ở nông thôn luôn chiếm được cảm tình nhờ vẻ đẹp gần gũi, truyền thống nhưng vẫn đầy đủ tiện nghi. Mái Nhật giúp ngôi nhà mềm mại hơn, giảm cảm giác đồ sộ so với mái Thái. Phần sân vườn xung quanh có thể thiết kế theo dạng mở, trồng cây ăn trái, hoa cỏ hoặc tiểu cảnh rất thích hợp để thư giãn, nghỉ dưỡng. Đây cũng là lựa chọn của nhiều người khi xây dựng nhà ở quê sau thời gian đi làm xa.

Mẫu thiết kế nhà mái Nhật 2 tầng 1 tum
Mẫu nhà 2 tầng 1 tum mái Nhật là giải pháp thông minh cho các gia đình muốn mở rộng không gian sử dụng mà vẫn giữ thiết kế gọn gàng. Tầng tum có thể tận dụng làm phòng thờ, sân phơi, phòng làm việc hoặc khu vực thư giãn. Tổng thể kiến trúc vẫn giữ phong cách mái Nhật thanh thoát, trong khi phần tum được thiết kế thấp hơn mái chính để tạo cảm giác cân đối. Đây là phương án tối ưu cho cả đô thị lẫn vùng ven.

Mẫu nhà 3 gian 2 tầng mái Nhật
Kết hợp giữa truyền thống và hiện đại, mẫu nhà 3 gian 2 tầng mái Nhật mang lại vẻ đẹp bình dị, đậm chất Á Đông. Thiết kế thường có sảnh chính ở giữa, hai gian phụ hai bên, tầng 2 bố trí phòng ngủ và khu sinh hoạt chung. Phù hợp với không gian nông thôn hoặc khu vực có văn hóa truyền thống mạnh, mẫu này thường gắn liền với gia đình nhiều thế hệ sống chung.

Nhà mái Nhật 2 tầng 2 sảnh
Thiết kế nhà 2 tầng mái Nhật 2 sảnh thường áp dụng cho các mẫu nhà biệt thự mini, nhà ở vùng nông thôn có diện tích đất lớn. Hai sảnh giúp ngôi nhà có thêm điểm nhấn và chức năng tiện lợi như sảnh chính để tiếp khách, sảnh phụ đi vào bếp hoặc phòng sinh hoạt riêng. Sự phân chia rõ ràng giữa các khu vực mang lại cảm giác tiện nghi, sang trọng và dễ quản lý không gian sống.

Mẫu nhà vườn 2 tầng mái Nhật
Mẫu nhà vườn mái Nhật 2 tầng là sự kết hợp hoàn hảo giữa không gian sống hiện đại và kiến trúc truyền thống Nhật Bản. Thiết kế thường bố trí tầng 1 là khu vực sinh hoạt chung, tầng 2 là không gian nghỉ ngơi, kết hợp với hệ sân vườn rộng rãi, hồ cá hoặc bàn trà ngoài trời. Mái Nhật thấp, đổ rộng kết hợp với cảnh quan xung quanh tạo nên một bức tranh tổng thể hài hòa, mang đậm tính thư giãn, phù hợp với các gia đình có người cao tuổi hoặc những ai yêu thích sự yên tĩnh.


➤➤➤ Xem thêm: 100+ Mẫu nhà mái Nhật đẹp, ấn tượng và được ưa chuộng nhất 2025
Các mẫu nhà 2 tầng mái Nhật đẹp theo công năng

Mẫu nhà mái Nhật 2 tầng có gara
Với nhu cầu sử dụng ô tô ngày càng cao, mẫu nhà đẹp 2 tầng mái Nhật có gara ô tô đang trở thành xu hướng tại cả thành phố và nông thôn. Gara thường được bố trí bên hông nhà hoặc kết hợp khéo léo ngay dưới mái hiên tầng 1, đảm bảo công năng mà không ảnh hưởng đến kiến trúc tổng thể. Gara tích hợp giúp tiết kiệm diện tích, đồng thời đảm bảo an ninh, tiện lợi khi di chuyển. Kết hợp cùng mái Nhật thanh lịch, mẫu nhà này vừa hiện đại vừa thực tế trong sử dụng.

Mẫu nhà mái Nhật 2 tầng phòng thờ tầng 1
Trong nhiều gia đình Việt, việc bố trí phòng thờ ở tầng 1 thể hiện sự trang nghiêm và thuận tiện trong sinh hoạt, đặc biệt với những gia đình có người lớn tuổi. Các nhà 2 tầng mái Nhật có phòng thờ tầng 1 thường thiết kế phòng thờ gần sảnh chính hoặc gần phòng khách, tạo nên sự kết nối linh thiêng giữa không gian sống và yếu tố tâm linh. Ngoài ra, việc bố trí phòng thờ tầng 1 giúp hạn chế việc leo cầu thang, rất phù hợp với người cao tuổi và thuận tiện trong các dịp cúng giỗ, lễ tết.

Mẫu 2 tầng nhà mái Nhật có bể bơi
Dành cho những ai yêu thích cuộc sống nghỉ dưỡng, mẫu nhà mái Nhật 2 tầng có bể bơi mang lại không gian sống đẳng cấp và thư giãn. Bể bơi có thể bố trí ở mặt trước hoặc phía sau nhà tùy theo diện tích và hướng nắng. Kết hợp với không gian xanh, tiểu cảnh và hệ thống ánh sáng thông minh, ngôi nhà sẽ trở thành tổ ấm lý tưởng cho gia đình. Đặc biệt, kiểu mái Nhật có độ dốc vừa phải giúp che chắn nắng gắt, tạo bóng mát tự nhiên cho khu vực hồ bơi.

Mẫu nhà mái Nhật 2 tầng có sân vườn
Nhà 2 tầng mái Nhật có sân vườn là sự lựa chọn tuyệt vời cho những ai muốn sống gần gũi với thiên nhiên. Không gian sân vườn không chỉ giúp điều hòa không khí mà còn mang đến sự yên bình, thư thái. Với kiến trúc mái Nhật mềm mại kết hợp cùng lối đi lát đá, tiểu cảnh và hàng cây xanh, ngôi nhà trở nên hài hòa và đẹp mắt. Mẫu nhà này rất được ưa chuộng tại các khu biệt thự sinh thái hoặc vùng ven đô.

➤➤➤ Xem thêm: 99+ mẫu nhà 2 tầng đẹp, hiện đại và hợp xu hướng nhất năm 2025
Các mẫu nhà mái Nhật 2 tầng đẹp theo số phòng ngủ

Mẫu nhà mái Nhật 2 tầng 3 phòng ngủ
Phù hợp cho gia đình trẻ từ 3 đến 5 người, mẫu nhà 2 tầng mái Nhật 3 phòng ngủ có thiết kế gọn gàng nhưng vẫn đầy đủ công năng:
-
1 phòng ngủ lớn (master) có nhà vệ sinh riêng
-
2 phòng ngủ nhỏ dành cho con hoặc khách
-
Kết hợp phòng khách với bếp liên thông tạo không gian mở thoáng đãng

Đây là mẫu nhà mái Nhật đẹp 2 tầng hiện đại được ưa chuộng nhờ sự tiện nghi, tối ưu diện tích và tính thẩm mỹ cao. Kiểu mái đua rộng cũng giúp bảo vệ tường, hạn chế ẩm mốc hiệu quả.
Mẫu thiết kế nhà mái Nhật 2 tầng 4 phòng ngủ
Mẫu nhà mang vẻ đẹp hiện đại, tươi mới sử dụng chất liệu kính tạo hiệu ứng mở rộng không gian. Phần mái Nhật góp phần tạo nên sự bề thế, vững chãi và tăng tính thẩm mỹ cho ngôi nhà.

Mẫu nhà mái Nhật 2 tầng 5 phòng ngủ
Với những gia đình đông thành viên hoặc nhiều thế hệ cùng chung sống, mẫu nhà mái Nhật hai tầng 5 phòng ngủ là lựa chọn lý tưởng. Thiết kế này thường phân bố:
-
Tầng 1: 1 đến 2 phòng ngủ (phù hợp cho ông bà, người lớn tuổi), kết hợp phòng khách, bếp, phòng ăn.
-
Tầng 2: 3 phòng ngủ còn lại, có thể đi kèm phòng sinh hoạt chung, phòng học hoặc phòng làm việc.

Việc phân tầng hợp lý giúp tối ưu không gian sử dụng và đảm bảo sự riêng tư cho từng thành viên. Mái Nhật giúp giảm nhiệt tốt, chống ồn hiệu quả, tạo môi trường sống dễ chịu quanh năm.
Những mẫu nhà 2 tầng mái nhật đẹp theo diện tích

Nhà mái Nhật 2 tầng mặt tiền 5m
Với mặt tiền 5m, đây thường là những mẫu nhà ống mái Nhật 2 tầng phù hợp với khu đất hẹp chiều ngang. Thiết kế thường tập trung vào chiều sâu và bố trí lệch tầng để tối ưu ánh sáng và thông gió. Dù diện tích hạn chế, nhưng mái Nhật vẫn mang đến vẻ thanh lịch, sang trọng và tạo cảm giác rộng rãi hơn cho không gian bên trong.

Nhà 2 tầng mặt tiền 6m mái Nhật
Nhà 2 tầng mặt tiền 6m mái Nhật là lựa chọn lý tưởng cho những ai mong muốn vừa có mặt tiền rộng để kinh doanh, vừa có không gian sống thoáng đãng. Thiết kế thường đi theo dạng chữ L hoặc hình hộp, kết hợp ban công và mái đua giúp tăng thêm tính thẩm mỹ.

Thiết kế nhà mái Nhật 2 tầng ngang 7m
Với chiều ngang 7m, bạn có thể thoải mái thiết kế nhà 2 tầng mái Nhật 4 phòng ngủ, có gara để xe, sân vườn nhỏ phía trước. Kiến trúc mái Nhật mềm mại kết hợp mặt tiền hiện đại hoặc tân cổ điển tạo nên tổng thể hài hoà, sang trọng.

Mẫu nhà mái Nhật 2 tầng mặt tiền 8m
Mẫu nhà 2 tầng mái Nhật mặt tiền 8m được đánh giá là tỷ lệ "vàng" cho các mẫu nhà phố hoặc nhà vườn hiện đại. Thiết kế dễ dàng bố trí 3 và 4 phòng ngủ, 1 phòng thờ, sân chơi và không gian mở trong nhà.

Mẫu nhà mái Nhật 2 tầng mặt tiền 10m
Nhà 2 tầng mái Nhật mặt tiền 10m là lựa chọn cho các gia đình có quỹ đất lớn. Thiết kế biệt thự sân vườn, có thể thêm hồ cá, tiểu cảnh, gara ô tô và không gian thư giãn ngoài trời. Mái Nhật giúp tổng thể trở nên hài hoà, mềm mại và mát mẻ hơn vào mùa hè.

Mẫu nhà mái Nhật 2 tầng 100m2
Với diện tích sàn 100m2 (10x10, 8x12, 9x11…), mẫu nhà này phù hợp với nhiều hình khối thiết kế. Đây là một trong những mẫu thiết kế nhà đẹp 2 tầng mái Nhật đẹp được lựa chọn nhiều nhất nhờ sự cân đối giữa công năng và tính thẩm mỹ.

➤➤➤ Xem thêm: 22+ Mẫu nhà lắp ghép 2 tầng đẹp, hiện đại và tiết kiệm chi phí 2025
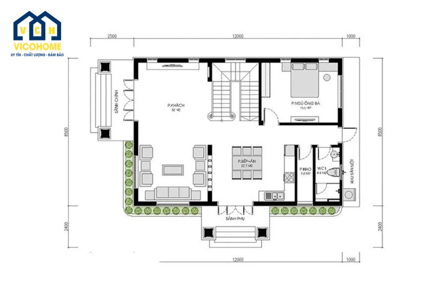
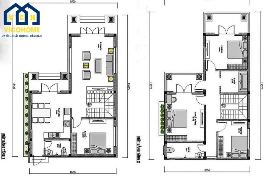
Bản vẽ nhà 2 tầng mái Nhật
- Mặt bằng tầng 1 thường là không gian sinh hoạt chung của gia đình. Trong các thiết kế nhà mái Nhật 2 tầng, bố trí tầng 1 phổ biến như sau:
-
Phòng khách được đặt ở ngay cửa chính, kết nối liền mạch với khu vực bếp và bàn ăn.
-
Phòng ngủ ông bà (nếu có) bố trí ở tầng 1 để thuận tiện di chuyển.
-
Nhà vệ sinh chung được đặt ở cuối nhà, gần khu vực bếp để tiết kiệm diện tích và đường ống kỹ thuật.
-
Gara ô tô (nếu có) có thể bố trí lệch hoặc tách riêng một bên nhà.
-
Tầng 1 cũng có thể tích hợp phòng thờ với các mẫu nhà 2 tầng mái Nhật có phòng thờ tầng 1, rất phù hợp với người lớn tuổi hoặc yếu tố phong thuỷ.

Sự kết nối mở giữa các không gian giúp tạo cảm giác rộng rãi, thông thoáng hơn cho căn nhà.
- Mặt bằng tầng 2 chủ yếu dành cho không gian nghỉ ngơi và sinh hoạt riêng tư. Tùy theo nhu cầu mà có thể bố trí từ 2 đến 4 phòng ngủ, phòng sinh hoạt chung, ban công và:
-
Phòng ngủ master thường có nhà vệ sinh riêng, hướng ban công đón gió.
-
Phòng ngủ con bố trí gần nhau, có thể dùng chung 1 nhà vệ sinh.
-
Phòng làm việc hoặc phòng đọc sách nhỏ nếu diện tích cho phép.
-
Với các mẫu nhà mái Nhật 2 tầng có sân vườn, tầng 2 có thể bố trí sân phơi, sân chơi ngoài trời.

Chi phí xây nhà mái Nhật 2 tầng
Một trong những vấn đề được quan tâm hàng đầu khi xây nhà 2 tầng mái Nhật chính là chi phí. Mức đầu tư cho một công trình sẽ phụ thuộc vào nhiều yếu tố như diện tích, vật liệu, địa điểm xây dựng, phong cách kiến trúc và đơn vị thi công. Dưới đây là những thông tin bạn nên biết để dự trù ngân sách hợp lý.

Cách tính chi phí xây nhà 2 tầng mái Nhật theo quy mô
Trung bình, chi phí xây nhà mái Nhật 2 tầng hiện đại dao động từ 6 triệu – 8,5 triệu/m² tùy thuộc vào mức độ hoàn thiện:
| Hạng mục hoàn thiện | Đơn giá tham khảo (VNĐ/m²) |
| Phần thô | 3.300.000 – 3.800.000 |
| Hoàn thiện cơ bản | 6.000.000 – 7.000.000 |
| Hoàn thiện cao cấp | 7.500.000 – 8.500.000 |
- Ví dụ: Một mẫu nhà 2 tầng mái Nhật 100m2 sàn xây dựng (~200m2 sàn tổng) sẽ có mức chi phí:
-
Hoàn thiện cơ bản: ~ 1,2 – 1,4 tỷ
-
Hoàn thiện cao cấp: ~ 1,5 – 1,7 tỷ
Chi phí theo kiểu công trình và công năng
Một số mẫu nhà mái Nhật 2 tầng đặc biệt có chi phí dao động như sau:
-
Nhà đẹp 2 tầng mái Nhật có gara: +100 – 200 triệu tùy kiểu gara âm hay nổi.
-
Mẫu nhà vườn 2 tầng mái Nhật: +150 – 300 triệu cho chi phí sân vườn, tiểu cảnh.
-
Nhà mái Nhật đẹp 2 tầng có bể bơi: +400 – 700 triệu, phụ thuộc vào diện tích và công nghệ xử lý nước.
-
Mẫu nhà mái Nhật hai tầng ở nông thôn thường tiết kiệm hơn ~10–15% do nhân công và vật liệu rẻ hơn.
Kinh nghiệm thiết kế và xây nhà mái Nhật 2 tầng
Khi đầu tư vào một mẫu nhà mái Nhật hai tầng, việc chuẩn bị kỹ lưỡng từ thiết kế đến thi công là yếu tố sống còn giúp bạn sở hữu một tổ ấm đẹp, tối ưu công năng và bền vững lâu dài. Dưới đây là những kinh nghiệm thực tế mà bạn không nên bỏ qua.

Lên kế hoạch và dự trù chi phí hợp lý
Hãy xác định rõ nhu cầu của gia đình trước khi bắt đầu. Bạn cần bao nhiêu phòng ngủ? Có cần phòng thờ? Có gara hay không? Ví dụ, nếu gia đình có từ 5–6 thành viên, bạn có thể lựa chọn mẫu nhà mái Nhật 2 tầng 4 phòng ngủ hoặc 5 phòng ngủ với bố trí không gian hài hòa giữa sinh hoạt chung và riêng tư.
Hãy đặt ra một ngân sách cụ thể và tham khảo đơn giá thị trường. Đừng quên dự trù thêm 10–15% chi phí phát sinh trong quá trình thi công. Nếu bạn xây dựng ở khu vực nông thôn, có thể tận dụng lợi thế nhân công rẻ để tiết kiệm đáng kể.
Chọn đơn vị thiết kế và thi công uy tín
Một đơn vị uy tín sẽ giúp bạn lên bản vẽ thiết kế chuẩn kỹ thuật, tối ưu diện tích và không gian, Giảm thiểu rủi ro và phát sinh trong thi công.
Tối ưu công năng nhà 2 tầng mái Nhật
Đừng để nhà đẹp nhưng bất tiện! Công năng nên đi trước thẩm mỹ. Ví dụ, nhà mái Nhật 2 tầng phòng thờ tầng 1 là lựa chọn tốt cho gia đình có người lớn tuổi không tiện leo cầu thang. Phòng ngủ nên đón sáng tự nhiên, phòng bếp tách biệt mùi, có chỗ thoáng khí.

Chọn vật liệu xây dựng chất lượng
Vật liệu tốt giúp tăng độ bền, giảm chi phí bảo trì và giữ vẻ đẹp lâu dài cho công trình. Phần mái nên dùng ngói Nhật hoặc ngói sóng lớn để đảm bảo chống nóng, chống thấm và phù hợp phong cách tổng thể.
Tính toán độ dốc và kết cấu mái
Mái Nhật thường có độ dốc thoải, cần thi công đúng chuẩn để tránh đọng nước. Cấu tạo mái nên đảm bảo cách nhiệt và thoát nước tốt, nhất là với những mẫu nhà mái Nhật 2 tầng có tum hoặc nhà có nhiều khối đua ra.

Bố trí không gian mở và phối cảnh phù hợp
Không gian thông thoáng với nhiều ánh sáng tự nhiên sẽ tạo sự kết nối giữa các thành viên và tiết kiệm điện năng. Bạn có thể chọn mẫu thiết kế nhà 2 tầng mái Nhật chữ L để tạo sân bên hông, hoặc thiết kế nhà mái Nhật 2 tầng đẹp có sân vườn để tận hưởng không gian sống gần gũi thiên nhiên.
Mỗi khu đất có một thế mạnh riêng. Với nhà mặt phố nên chọn mẫu nhà mái Nhật hai tầng hiện đại, còn ở nông thôn nên ưu tiên mẫu nhà 3 gian 2 tầng mái Nhật hoặc nhà vườn mái Nhật 2 tầng để hòa hợp với môi trường sống.

Tính toán chiều cao nhà mái Nhật 2 tầng hợp lý
Chiều cao trung bình của nhà 2 tầng mái Nhật thường rơi vào 10m – 11.5m (bao gồm mái). Cụ thể:
-
Tầng 1: ~3.6m
-
Tầng 2: ~3.3m
-
Mái: 2.5m – 3m tùy kiểu mái
Chiều cao hợp lý giúp căn nhà thoáng đãng, mát mẻ và cân đối tổng thể kiến trúc.
Nhà mái Nhật 2 tầng không chỉ chinh phục người Việt bởi vẻ ngoài thanh lịch, hiện đại mà còn nhờ vào công năng tối ưu, phù hợp với nhiều kiểu đất và nhu cầu sử dụng khác nhau. Từ các mẫu thiết kế đơn giản đến biệt thự mái Nhật cao cấp, hay những thiết kế nhà ống mái Nhật 2 tầng, tất cả đều toát lên nét tinh tế và tiện nghi khó cưỡng. Dù bạn đang tìm kiếm mẫu nhà 2 tầng mái Nhật giá rẻ, một mẫu nhà mái Nhật đẹp 2 tầng hiện đại, hay ngôi nhà vườn mái Nhật 2 tầng lý tưởng giữa thiên nhiên, thì việc thiết kế và thi công đúng chuẩn luôn là yếu tố then chốt để biến giấc mơ thành hiện thực. Nếu bạn đang có thắc mắc hoặc nhu cầu thiết kế và thi công, hãy liên hệ Vicohome để được hỗ trợ và tư vấn miễn phí nhé.
Đánh giá - Bình luận
Có 0 bình luận, đánh giá về
Nhận xét và đánh giá